For Sale By Auction | 12:00, 03 April 2025 | Lot 17

27 Crown Street, Cockermouth, Cumbria CA13 0ER

Sold £110,000

  • Terraced House
  • 3 Bedrooms
  • Tenure: See Legal Pack

Call the team on 01228 510 552 for more information

Auction Date

Thu 03/04/2025

Auction Time

12:00

Auction Venue

The Halston Hotel, 20-34 Warwick Road • CA1 1AB

Viewing Times:

Sat 15 Mar

11:30-12:00

Mon 24 Mar

13:30-14:00

Mon 31 Mar

11:30-12:00

Terraced house with former Smithy and garden

A terraced property with adjoining former Smithy 29' x 23' and enclosed rear garden near the town centre. The property has two reception rooms and three bedrooms and whilst in need of modernisation offers great potential. The Smithy is suitable for a variety of uses subject to planning.

Tenure

See Legal Pack

What3words location ///gagging.liberated.canal

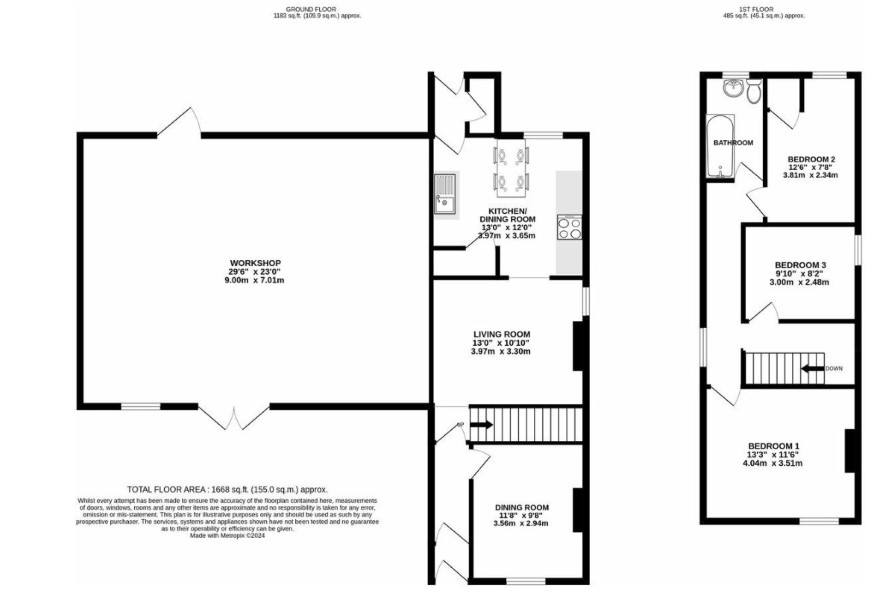
Ground Floor

Entrance hall Front Sitting Room 11'6 x 9'6 Living Room 13' x 10'9 Kitchen 13' x 12'6

First Floor

Front Bedroom 13' x 11'6 Rear Bedroom 8'6 x 8'3 Rear Bedroom 12'9 x 7'9 Bathroom 9'6 x 5'

Outside

Enclosed rear garden, see title plan, and adjoining former Smithy 29' x 23' suitable for a variety of uses subject to planning consent.

Energy Efficiency Rating (EPC)

Current Rating G

Services

Interested parties are invited to make their own enquiries to the relevant authorities as to the availability of the services.

Local Authority

Cumberland Council

Solicitors

Burnetts, 3c Lakeland Business Park, Ref: Kathryn Hill, Tel: 01900 510366

Important Notice to Prospective Buyers:

We draw your attention to the Special Conditions of Sale within the Legal Pack, referring to other charges in addition to the purchase price which may become payable. Such costs may include Search Fees, reimbursement of Sellers costs and Legal Fees, and Transfer Fees amongst others.

Additional Fees

Administration Charge - £1200 inc VAT payable on exchange of contracts.

Disbursements - Please see the legal pack for any disbursements listed that may become payable by the purchaser on completion.

View Larger Map

Disclaimer: The map preview provided above is for general guidance only and may not accurately reflect the exact location or surrounding buildings. Prospective buyers and interested parties are strongly advised to independently verify the precise location and surroundings before bidding.