For Sale By Auction | 12:00, 03 April 2025 | Lot 22

46 Oakthwaite Road, Windermere, Cumbria LA23 2BD

Sold £220,000

  • End of Terrace House
  • 4 Bedrooms
  • Tenure: See Legal Pack

Call the team on 01228 510 552 for more information

Auction Date

Thu 03/04/2025

Auction Time

12:00

Auction Venue

The Halston Hotel, 20-34 Warwick Road • CA1 1AB

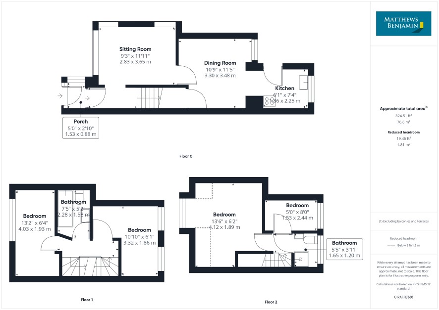
Four bedroom end terrace property in a popular Lake District location

Situated a popular location close to Queens Park Recreation Ground and the heart of the Village of Windermere, this good sized family home would make a great investment purchase as a rental property, second home, holiday let or main residence. The property has been a successful rental achieving £900 per calendar month. Offer with vacant possession, the accommodation comprises, hall, lounge, dining room and kitchen on the ground floor. Two bedrooms and bathroom on the first floor, and a further two bedrooms and shower room on the second floor.

Tenure

See Legal Pack

Ground Floor

Porch into Hall Lounge 13' x 10'6 Dining Room 10'9 x 10'9 Kitchen 7'3 x 6'3

First Floor

Bedroom 13' x 10'9 Bedroom 13' x 6'6 Bathroom 7'6 x 5'3

Second Floor

Bedroom 13' x 10'6 Bedroom 9'2 x 5'3 Shower Room 5'6 x 4'

Outside

Low maintenance front and rear garden

Viewing

To arrange a viewing please contact Matthew Benjamin Estate Agents on 015394 32220

Energy Efficiency Rating (EPC)

Current Rating E

Services

Interested parties are invited to make their own enquiries to the relevant authorities as to the availability of the services.

Local Authority

South Lakeland District Council

Solicitors

Thomson Hayton Winkley, 25 Crescent Road, Ref: Zoe Gibson, Tel: 015394 46585

Offered in association with

Matthews Benjamin

Important Notice to Prospective Buyers:

We draw your attention to the Special Conditions of Sale within the Legal Pack, referring to other charges in addition to the purchase price which may become payable. Such costs may include Search Fees, reimbursement of Sellers costs and Legal Fees, and Transfer Fees amongst others.

Additional Fees

Administration Charge - £1200 inc VAT payable on exchange of contracts.

Disbursements - Please see the legal pack for any disbursements listed that may become payable by the purchaser on completion.

View Larger Map

Disclaimer: The map preview provided above is for general guidance only and may not accurately reflect the exact location or surrounding buildings. Prospective buyers and interested parties are strongly advised to independently verify the precise location and surroundings before bidding.