Withdrawn | Lot 33

Cliffton House & Mews, Solway Terrace, Maryport, Cumbria CA15 6EL

Withdrawn

  • Town House
  • 4 Bedrooms
  • Tenure: See Legal Pack

Call the team on 01228 510 552 for more information

Auction Date

Thu 17/07/2025

Auction Time

12:00

Auction Venue

The Halston Hotel, 20-34 Warwick Road • CA1 1AB

Viewing Times:

Sun 29 Jun

11:45-12:15

Sun 6 Jul

14:00-14:30

Fri 11 Jul

14:00-14:30

Cliffton house is a large Georgian former traders dwelling, sitting on a private road overlooking the harbour and North West Lakeland Coastline.

The residence sits directly overlooking Maryport harbour with imposing views across the Solway Firth to Dumfriesshire (Scotland). On a private road, the property offers a level of tranquillity and privacy, with the benefits of rural town living, with views to the Lakeland Fells to the rear. Excellent communications and transport access. This is a truly one of a kind property, secure from the encroachment of development due to its listed status and being situated in an area of outstanding natural beauty, thus offering secure investment potential.

Tenure

See Legal Pack

What3words location ///folks.warned.measuring

North West Lakes Coast, Maryport, Solway Terrace, Cumbria, CA156EL, UK. Cockermouth 7 miles, Carlisle 25 miles, Keswick 17 miles.

Cliffton House is suited to developers and investors who would like to own a property which can be both a home, and or a generator of rental income, in a location of increasing value, and natural beauty. The main property requires some refurbishment and finishing, it is of high quality and has stood the test of time, and offers multiple use options, and potential financial returns.

The rear stables and coach house are ready for development into housing in a very desirable location making this a great investment proposition. The property benefits from positive and ongoing support from the local authority for any residential development. It is vacant and ready for immediate occupation.

Cliffton House

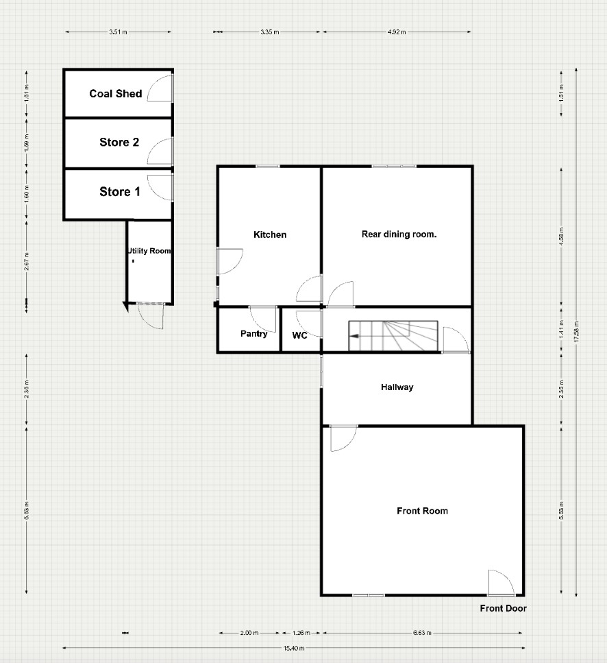
Clifton House: room dimensions. In metres (main house) Rear downstairs dining room:L: 4.95 W:5 H:3.5 Kitchen: L: 5.0 W:3.55 H:2.92 Hallway: L:3.9 W:3.7 H:3.5 Downstairs front reception/living room L:6.63 W:5.53 H:3.48 Downstairs toilet: L:1.42 W: 1.42 H2.9 Large main front Bedroom L:6.63 W:5.33 H:3.03 Back bedroom L:4.96 W:4.98 H:3 Bathroom upstairs L:4.95 W:3.49 H:2.55 First floor landing: L:4.93 W:3.92 H:2.55 Attic Landing/Shower room: L:3.9 W:3.4 H:2.57 Large Attic bedroom (left) L:4.93 W:4.98 H:2.23 Large Attic Bedrooms (right) L:6.6 W:5.36 H: 2.23 Cellar/heating utility room. L:6m W:5m H:2.3m There are also rear out buildings for storage, as well as an attached rear court, and a porch area, and exterior laundry room, to the rear of the kitchen.

The property has previously undergone extensive part renovations, such as flooring, roofing works, new digital controlled central heating system throughout. The property has recently undergone some required works and is ready for conversion for use as an HMO, private home, or recreational accommodation, elderly care accommodation etc. The works were halted due to a bereavement, and the property is now being sold by the executors. The property has extensive potential for returns for any investor. The planners have indicated in principle that an application for the rear stables and coach house, to be developed into two residential dwellings would be supported. It is envisaged that these buildings would be developed into quality elderly (assisted independent) living accommodation given the proximity to the well regarded elderly care facility next door. The rear buildings are directly connected to the extremely well regarded Solway House elderly care facility, and thus offer a great opportunity to generate income from the elderly transitional care market. This could be achieved from people and families requiring accommodations prior to their placement in the care home, or simply to offer them a more secure independent living option, with the benefit of care assistance when or if required. This kind of accommodation carries a premium in the market, and thus would offer potentially greater returns on investment, and a more secure and lucrative position in a growing market. The working title for the development of the properties to the rear of Cliffton House is ‘Cliffton Mews’. Allerdale District Council have agreed to the development of the rear buildings into Houses or apartments, under the guidance that the exteriors of the building should be in keeping with the requirements of the heritage zone.

Cliffton Mews Development

To the rear of Cliffton House are the gardens and Mews, which comprise of outbuildings, a courtyard garden, former stables and coach house. Clifton House rear double gated courtyard entrance is from Little Camp Street to the rear.

Please Note

The description, floor plans, measurements and photographs have been supplied by the vendor and are intended to provide a general overview of the property. Interested parties should carry out their own inspection and make their own enquiries to Cumberland council regarding their proposed use.

Energy Efficiency Rating (EPC)

Current Rating E

Services

Interested parties are invited to make their own enquiries to the relevant authorities as to the availability of the services.

Local Authority

Cumberland Council

Important Notice to Prospective Buyers:

We draw your attention to the Special Conditions of Sale within the Legal Pack, referring to other charges in addition to the purchase price which may become payable. Such costs may include Search Fees, reimbursement of Sellers costs and Legal Fees, and Transfer Fees amongst others.

Additional Fees

Administration Charge - 1.2% inc VAT of the purchase price, subject to a minimum of £1500 inc VAT, payable on exchange of contracts.

Disbursements - Please see the legal pack for any disbursements listed that may become payable by the purchaser on completion.

View Larger Map

Disclaimer: The map preview provided above is for general guidance only and may not accurately reflect the exact location or surrounding buildings. Prospective buyers and interested parties are strongly advised to independently verify the precise location and surroundings before bidding.