For Sale By Auction | 12:00, 17 July 2025 | Lot 51

5 Holme Eden Hall, Warwick Bridge, Carlisle, Cumbria CA4 8RD

Sold £75,000

  • Apartment
  • 2 Bedrooms
  • Tenure: See Legal Pack

Call the team on 01228 510 552 for more information

Auction Date

Thu 17/07/2025

Auction Time

12:00

Auction Venue

The Halston Hotel, 20-34 Warwick Road • CA1 1AB

Split level apartment in prestigious listed building

A split level ground floor apartment forming part of this prestigious, calendar house, listed building located just off the A69 between Carlisle and Brampton. It is currently let on an Assured Shorthold Tenancy at £895 a month and comprises:- hall, 23' sitting room and en-suite bedroom on the ground floor and dining kitchen, en-suite bedroom, main bathroom and boiler room on the lower ground floor.

Tenure

See Legal Pack

What3words location ///glades.scoop.avocado

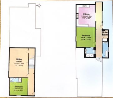
Ground Floor

Entrance hall Sitting Room 23' x 15'5 En-suite Double Bedroom 14'9 x 9'10

Lower Ground Floor

Dining Kitchen 17'5 x 15'9 En-suite Double Bedroom 15'9 x 14'5 Bathroom Boiler Room

Long Leasehold Tenure

999 years from 2005

Energy Efficiency Rating (EPC)

Current Rating C

Services

Interested parties are invited to make their own enquiries to the relevant authorities as to the availability of the services.

Solicitors

Murray Hills Solicitors, Ref: Helen Cherry, Tel: 01262 672249

Important Notice to Prospective Buyers:

We draw your attention to the Special Conditions of Sale within the Legal Pack, referring to other charges in addition to the purchase price which may become payable. Such costs may include Search Fees, reimbursement of Sellers costs and Legal Fees, and Transfer Fees amongst others.

Additional Fees

Administration Charge - 1.2% inc VAT of the purchase price, subject to a minimum of £1500 inc VAT, payable on exchange of contracts.

Disbursements - Please see the legal pack for any disbursements listed that may become payable by the purchaser on completion.

View Larger Map

Disclaimer: The map preview provided above is for general guidance only and may not accurately reflect the exact location or surrounding buildings. Prospective buyers and interested parties are strongly advised to independently verify the precise location and surroundings before bidding.