For Sale By Auction | 12:00, 17 July 2025 | Lot 47

6 Whitehaven Road, Cleator Moor, Cumbria CA25 5QN

Sold £50,000

  • End of Terrace House
  • 6 Bedrooms
  • Tenure: See Legal Pack

Call the team on 01228 510 552 for more information

Auction Date

Thu 17/07/2025

Auction Time

12:00

Auction Venue

The Halston Hotel, 20-34 Warwick Road • CA1 1AB

Viewing Times:

Sat 28 Jun

11:15-11:45

Sat 5 Jul

12:00-12:30

Sat 12 Jul

12:00-12:30

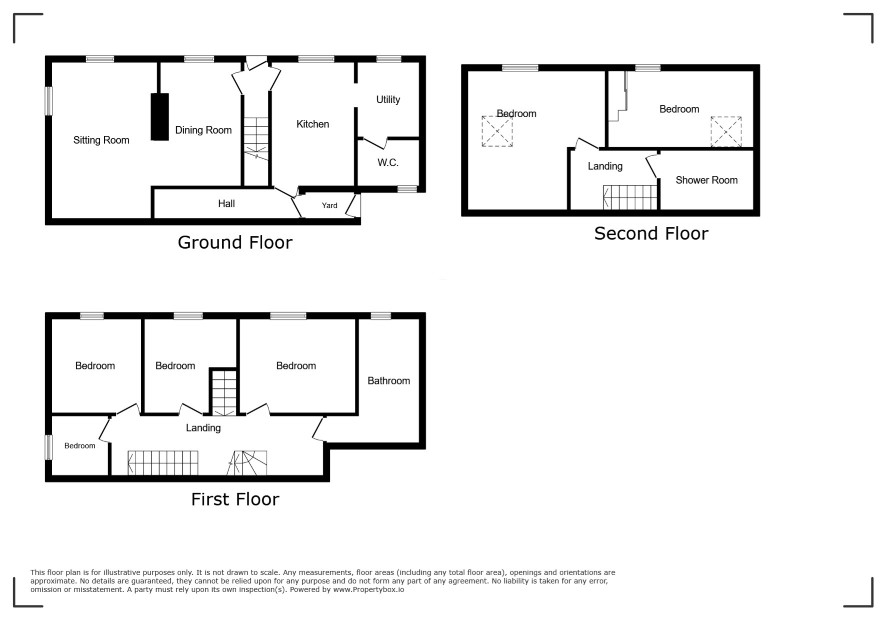
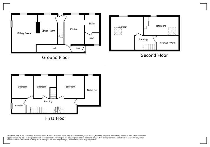
6 bedroomed investment property

A large, three storey end terrace house on the corner of Whitehaven Road and The Crescent. A good investment property capable of producing a high yield and comprising two reception rooms, kitchen, six bedrooms and two bathrooms.

Tenure

See Legal Pack

What3words location ///bids.tribes.nightcap

Ground Floor

Hall Sitting Room 16'6 x 12'3 Dining Room 13' x 8'9 Kitchen 11'6 x 9' Utility are Cloakroom with WC

First Floor

Bathroom 11'9 x 4' Bedroom 9'9 x 8'9 Bedroom 12' x 10'6 Bedroom 12'6 x 8'6

Second Floor

Bedroom 12'6 x 10'3 Bedroom 13' x 9' Shower Room with WC

Energy Efficiency Rating (EPC)

Current Rating E

Services

Interested parties are invited to make their own enquiries to the relevant authorities as to the availability of the services.

Local Authority

Cumberland Council

Solicitors

Brockbanks, Ref: Catherine Spraggon, Tel: 01900 827222

Important Notice to Prospective Buyers:

We draw your attention to the Special Conditions of Sale within the Legal Pack, referring to other charges in addition to the purchase price which may become payable. Such costs may include Search Fees, reimbursement of Sellers costs and Legal Fees, and Transfer Fees amongst others.

Additional Fees

Administration Charge - 1.2% inc VAT of the purchase price, subject to a minimum of £1500 inc VAT, payable on exchange of contracts.

Disbursements - Please see the legal pack for any disbursements listed that may become payable by the purchaser on completion.

View Larger Map

Disclaimer: The map preview provided above is for general guidance only and may not accurately reflect the exact location or surrounding buildings. Prospective buyers and interested parties are strongly advised to independently verify the precise location and surroundings before bidding.