For Sale By Auction | 12:00, 10 December 2025

39 Sun Street, Ulverston, Cumbria LA12 7BX

*Guide | £145,000 (plus fees)

  • Terraced House
  • 3 Bedrooms
  • Tenure: See Legal Pack

Call the team on 01228 510 552 for more information

Auction Date

Wed 10/12/2025

Auction Time

12:00

Auction Venue

The Halston Hotel, 20-34 Warwick Road • CA1 1AB

3 bedroom 3 story terrace house with large rear patio

A spacious three bedroom, three story house situated in a desirable location within waking distance of the town centre with great transport links and offering lots of great potential for updating and improvements.

Tenure

See Legal Pack

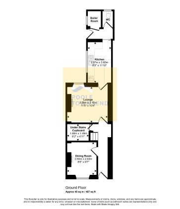
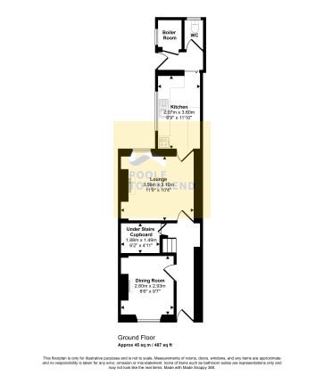
Ground floor

Dining room - 8'6x9'7 Storage - 6'2x4'11 Lounge - 11'9x10'4 Kitchen - 6'9x11'10 Boiler room WC

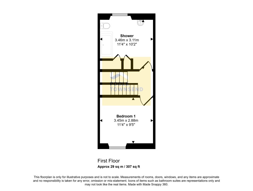
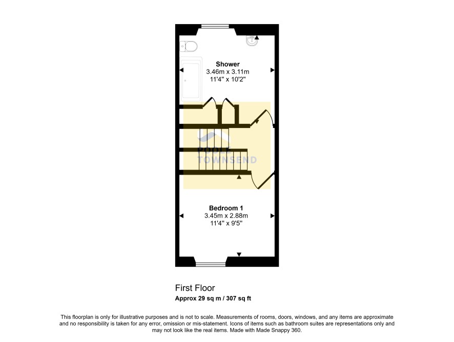
First Floor

Bedroom - 11'4x9'5 Shower room - 11'4x10'2

Second Floor

Bedroom - 11'4x9'4 Bedroom 11'5x10'5

Viewing

To arrange a viewing, call Poole Townsend on 01229 588111

Services

Interested parties are invited to make their own enquiries to the relevant authorities as to the availability of the services.

Local Authority

Westmorland and Furness Council

Solicitors

Livingstons Solicitors, 9 Benson Street, Ref: Kelly Rhodes, Tel: 01229 585555

Offered in association with

Poole Townsend

Important Notice to Prospective Buyers:

We draw your attention to the Special Conditions of Sale within the Legal Pack, referring to other charges in addition to the purchase price which may become payable. Such costs may include Search Fees, reimbursement of Sellers costs and Legal Fees, and Transfer Fees amongst others.

Additional Fees

Administration Charge - 1.2% inc VAT of the purchase price, subject to a minimum of £1500 inc VAT, payable on exchange of contracts.

Disbursements - Please see the legal pack for any disbursements listed that may become payable by the purchaser on completion.

View Larger Map

Disclaimer: The map preview provided above is for general guidance only and may not accurately reflect the exact location or surrounding buildings. Prospective buyers and interested parties are strongly advised to independently verify the precise location and surroundings before bidding.