For Sale By Auction | 12:00, 10 December 2025

16-18 Fountain Street, Ulverston, Cumbria LA12 7EQ

*Guide | £95,000 (plus fees)

  • Commercial Property
  • Tenure: Freehold

Call the team on 01228 510 552 for more information

Auction Date

Wed 10/12/2025

Auction Time

12:00

Auction Venue

The Halston Hotel, 20-34 Warwick Road • CA1 1AB

Viewing Times:

Thu 20 Nov

14:00-14:30

Fri 28 Nov

10:45-11:15

Fri 5 Dec

10:45-11:15

Tue 9 Dec

10:45-11:15

Town Centre, Commercial Property.

Commercial property situated in the centre of the popular town of Ulverston. Compromising of two reception/sales areas, kitchen/diner, two office rooms, bathroom and attic space, over three floors.

Tenure

Freehold

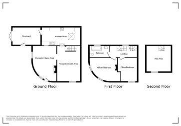
Ground Floor

Reception/Sales area - 19'8" x 10'5" Reception/Sales area - 16'4" x 7'6" Kitchen/Diner - 15'1" x 6'10" Courtyard/Carport - 18'0" x 8'2"

First Floor

Landing Office/Bedroom -16'4" x 7'2" Office/Bedroom - 14'1" x 6'10" Bathroom - 7'10" x 4'7"

Second Floor

Attic Space - 16'8" x 7'6"

Energy Efficiency Rating (EPC)

Current Rating E

Services

Interested parties are invited to make their own enquiries to the relevant authorities as to the availability of the services.

Local Authority

Westmorland and Furness Council

Solicitors

Poole Townsend, 69-75 Duke Street, Ref: Rochelle Edwards, Tel: 01229 811811

Important Notice to Prospective Buyers:

We draw your attention to the Special Conditions of Sale within the Legal Pack, referring to other charges in addition to the purchase price which may become payable. Such costs may include Search Fees, reimbursement of Sellers costs and Legal Fees, and Transfer Fees amongst others.

Additional Fees

Administration Charge - 1.2% inc VAT of the purchase price, subject to a minimum of £1500 inc VAT, payable on exchange of contracts.

Disbursements - Please see the legal pack for any disbursements listed that may become payable by the purchaser on completion.

View Larger Map

Disclaimer: The map preview provided above is for general guidance only and may not accurately reflect the exact location or surrounding buildings. Prospective buyers and interested parties are strongly advised to independently verify the precise location and surroundings before bidding.