Withdrawn | Lot 43

5 Dixon Ground, Coniston, Cumbria LA21 8HQ

Withdrawn

  • End of Terrace House
  • 4 Bedrooms
  • Tenure: See Legal Pack

Call the team on 01228 510 552 for more information

Auction Date

Wed 10/12/2025

Auction Time

12:00

Auction Venue

The Halston Hotel, 20-34 Warwick Road • CA1 1AB

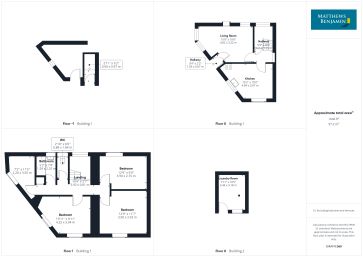
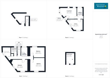
Traditional end of terrace Lakeland cottage

Deceptively spacious four bedroom traditional end of terrace Lakeland cottage, conveniently positioned close to the village centre. It is in need of complete modernisation, it comprises: hall, living room and kitchen to the ground floor, 4 bedrooms and bathroom to the first floor. Outside is a samll garden, laundry room beneath the property with 2 coal stores. The property is subject to a lifetime tenancy at £311.50pcm.

Tenure

See Legal Pack

Ground Floor

Hall Living Room 15'9 x 10'6 Kitchen 15'2 x 10' Inner Hallway

First Floor

Bedroom 13'11 x 9'11 Bedroom 12'9 x 11'7 Bedroom 12'9 x 9' Bathroom 5'2 x 7'4 Bedroom 7'2 x 11'5

Outside

Small garden to the front, laundry room beneath the property along with two coal stores.

Viewing

To view, please call Matthews Benjamin on 015394 32220

Please note

The property is sold subject to a lifetime tenancy

Energy Efficiency Rating (EPC)

Current Rating G

Services

Interested parties are invited to make their own enquiries to the relevant authorities as to the availability of the services.

Local Authority

Westmorland and Furness Council

Solicitors

Thomson Hayton Winkley, Ref: Craig Jackson, Tel: 01539 446585

Offered in association with

Matthews Benjamin

Important Notice to Prospective Buyers:

We draw your attention to the Special Conditions of Sale within the Legal Pack, referring to other charges in addition to the purchase price which may become payable. Such costs may include Search Fees, reimbursement of Sellers costs and Legal Fees, and Transfer Fees amongst others.

Additional Fees

Administration Charge - 1.2% inc VAT of the purchase price, subject to a minimum of £1500 inc VAT, payable on exchange of contracts.

Disbursements - Please see the legal pack for any disbursements listed that may become payable by the purchaser on completion.

View Larger Map

Disclaimer: The map preview provided above is for general guidance only and may not accurately reflect the exact location or surrounding buildings. Prospective buyers and interested parties are strongly advised to independently verify the precise location and surroundings before bidding.