For Sale By Auction | 12:00, 10 December 2025 | Lot 45

Ashbridge, Stockdalewath, Dalston, Carlisle, Cumbria CA5 7DP

Sold £250,000

  • Detached House
  • 4 Bedrooms
  • Tenure: Freehold

Call the team on 01228 510 552 for more information

Auction Date

Wed 10/12/2025

Auction Time

12:00

Auction Venue

The Halston Hotel, 20-34 Warwick Road • CA1 1AB

Viewing Times:

Sun 23 Nov

10:00-10:30

Sun 30 Nov

09:00-09:30

Thu 4 Dec

10:00-10:30

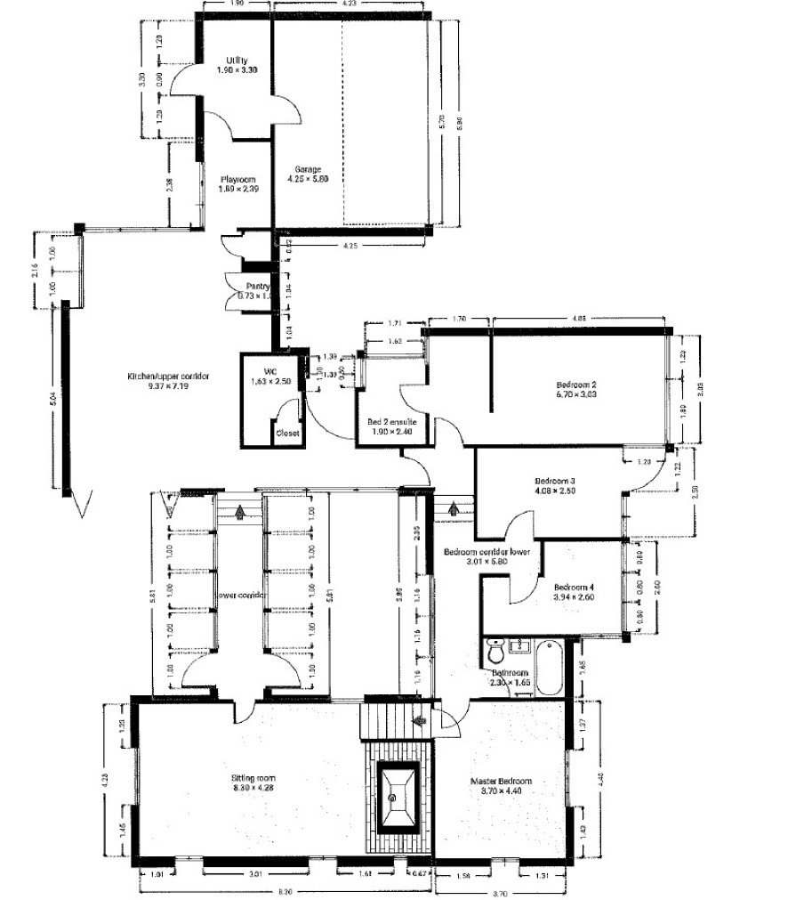
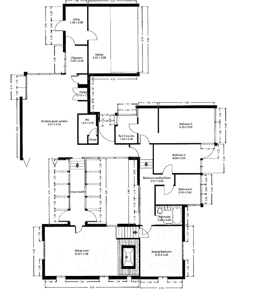
Unique, detached rural property for renovation

A unique, detached rural property occupying a delightful rural site of just under an acre in a sought after area 4 miles south of Dalston and 9 miles from Carlisle. The original 18th century barn was converted in the 1970s and enhanced with an architect-designed extension which features two connecting corridors with floor to ceiling windows around an inner courtyard. The large kitchen diner has expansive windows looking out onto the south-facing garden and views across the fields. The property flooded in May 2024 and in the wake of that the current owners embarked on an extensive modernisation project. This included creating a master bedroom suite with dressing room and en suite, an extended laundry, and a second family bathroom. Work has begun to install a wet underfloor heating system, the cavity wall insulation has been replaced and a damp-proof membrane fitted to the majority of solid stone walls. All drainage has also been updated and modernised. The outside space includes a chicken hutch and run, hardstandings for both a greenhouse and a shed and extensive gardens. This part-complete renovation offers a tremendous opportunity to provide a spacious family home.

Tenure

Freehold

What3words location ///duration.broth.curbed

Entrance Hall

Sitting Room 22'6 x 14'

with inglenook style fireplace and access to First Floor Study/Bedroom 14'3 x 11'9 and Mezzanine 11' x 7'6

Dining Kitchen 23'9 x 15'6

with access to

Double Garage 20' x 18'

with electric roller door

Bedroom Wing comprises:-

Bedroom 15'9 x 10' with En-suite & Dressing Room Bedroom 13' x 8'6 Bedroom 13' x 8'6 max Bedroom 14'6 x 12'3 Family Bathroom 7'9 x 7'3

Outside

The delightful garden site is accessed by a private bridge across the River Roe and extends overall to just under an acre with lawns and open fields around - see the title plan.

Services

Interested parties are invited to make their own enquiries to the relevant authorities as to the availability of the services.

Local Authority

Cumberland Council

Solicitors

Burnetts Solicitors, Ref: Codie Slessor, Tel: 01228 552222

Offered in association with

Hayward Tod

Important Notice to Prospective Buyers:

We draw your attention to the Special Conditions of Sale within the Legal Pack, referring to other charges in addition to the purchase price which may become payable. Such costs may include Search Fees, reimbursement of Sellers costs and Legal Fees, and Transfer Fees amongst others.

Additional Fees

Administration Charge - 1.2% inc VAT of the purchase price, subject to a minimum of £1500 inc VAT, payable on exchange of contracts.

Disbursements - Please see the legal pack for any disbursements listed that may become payable by the purchaser on completion.

View Larger Map

Disclaimer: The map preview provided above is for general guidance only and may not accurately reflect the exact location or surrounding buildings. Prospective buyers and interested parties are strongly advised to independently verify the precise location and surroundings before bidding.