For Sale By Auction | 12:00, 10 December 2025

Retail Unit , Carleton Meadows , Penrith, Cumbria CA11 8UQ

*Guide | £95,000 (plus fees)

  • Commercial Property
  • Tenure: See Legal Pack

Call the team on 01228 510 552 for more information

Auction Date

Wed 10/12/2025

Auction Time

12:00

Auction Venue

The Halston Hotel, 20-34 Warwick Road • CA1 1AB

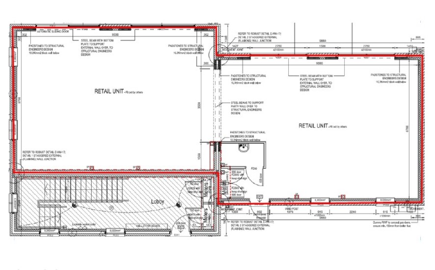
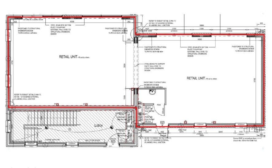
New build Retail Unit

Ground floor commercial premises which forms part of a large residential development situated on Carleton Meadows, which is located to the east of Penrith town centre. Suitable for a variety of uses with dedicated car parking. The new build unit is open plan and finished to a shell condition. Ground Floor Net Internal Area: 1,238 sq ft (115.01 sq m)

Tenure

See Legal Pack

What3Words Location ///hype.enrolling.ruffle

Services

Interested parties are invited to make their own enquiries to the relevant authorities as to the availability of the services.

Local Authority

Westminster City Council

Important Notice to Prospective Buyers:

We draw your attention to the Special Conditions of Sale within the Legal Pack, referring to other charges in addition to the purchase price which may become payable. Such costs may include Search Fees, reimbursement of Sellers costs and Legal Fees, and Transfer Fees amongst others.

Additional Fees

Buyer's Premium - £1800 inc VAT payable on exchange of contracts.

Administration Charge - 1.2% inc VAT of the purchase price, subject to a minimum of £1500 inc VAT, payable on exchange of contracts.

Disbursements - Please see the legal pack for any disbursements listed that may become payable by the purchaser on completion.

View Larger Map

Disclaimer: The map preview provided above is for general guidance only and may not accurately reflect the exact location or surrounding buildings. Prospective buyers and interested parties are strongly advised to independently verify the precise location and surroundings before bidding.