For Sale By Auction | 12:00, 12 February 2026 | Lot 33

5 Dixon Ground, Coniston, Cumbria LA21 8HQ

Sold £116,000

  • End of Terrace House
  • 4 Bedrooms
  • Tenure: See Legal Pack

Call the team on 01228 510 552 for more information

Auction Date

Thu 12/02/2026

Auction Time

12:00

Auction Venue

The Halston Hotel, 20-34 Warwick Road • CA1 1AB

Traditional end of terrace Lakeland cottage

Deceptively spacious four bedroom traditional end of terrace Lakeland cottage, conveniently positioned close to the village centre. It is in need of complete modernisation, it comprises: hall, living room and kitchen to the ground floor, 4 bedrooms and bathroom to the first floor. Outside is a small garden, laundry room beneath the property with 2 coal stores. The property is subject to a lifetime tenancy at £311.50pcm.

Tenure

See Legal Pack

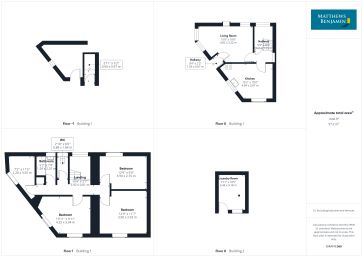
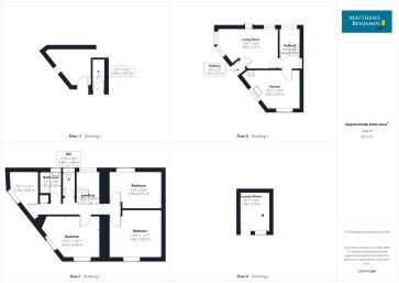
Ground Floor

Hall Living Room 15'9 x 10'6 Kitchen 15'2 x 10' Inner Hallway

First Floor

Bedroom 13'11 x 9'11 Bedroom 12'9 x 11'7 Bedroom 12'9 x 9' Bathroom 5'2 x 7'4 Bedroom 7'2 x 11'5

Outside

Small garden to the front, laundry room beneath the property along with two coal stores.

Viewing

To view, please call Matthews Benjamin on 015394 32220

Please note

The property is sold subject to a lifetime tenancy

4 Dixon Ground

4 Dixon Ground is being offered in the same auction with a Guide Price of £195,000+

Method of Sale

4 and 5 Dixon Ground will be offered initially as two separate lots and then as one combined lot. This is done by offering the separate lots as private auction lots which allows us to park the highest bids then offer the combined lot. Subject to the reserve being met if the bid for the combined lot is equal or in excess of the individual lots, it will be sold to that bidder. Or if the total of the bids on the individual lots are the highest they will be sold in that way.

Energy Efficiency Rating (EPC)

Current Rating G

Services

Interested parties are invited to make their own enquiries to the relevant authorities as to the availability of the services.

Local Authority

Westmorland and Furness Council

Solicitors

Thomson Hayton Winkley, Ref: Craig Jackson, Tel: 01539 446585

Offered in association with

Matthews Benjamin

Important Notice to Prospective Buyers:

We draw your attention to the Special Conditions of Sale within the Legal Pack, referring to other charges in addition to the purchase price which may become payable. Such costs may include Search Fees, reimbursement of Sellers costs and Legal Fees, and Transfer Fees amongst others.

Additional Fees

Administration Charge - 1.2% inc VAT of the purchase price, subject to a minimum of £1500 inc VAT, payable on exchange of contracts.

Disbursements - Please see the legal pack for any disbursements listed that may become payable by the purchaser on completion.

View Larger Map

Disclaimer: The map preview provided above is for general guidance only and may not accurately reflect the exact location or surrounding buildings. Prospective buyers and interested parties are strongly advised to independently verify the precise location and surroundings before bidding.