For Sale By Auction | 11:00, 26 March 2025 | Lot 44

17 Church Street, King's Lynn PE30 5EB

Sold £160,000

  • Terraced House
  • 4 Bedrooms
  • Tenure: Freehold

Call the team on 01553 777 773 for more information

Auction Date

Wed 26/03/2025

Auction Time

11:00

Auction Venue

Livestream Auction

A Grade II Listed four bedroom property located in the heart of Kings Lynn town centre.

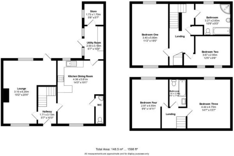
This four bedroom house is conveniently located in the heart of Kings Lynn and is available with vacant possession. The property benefits from period features throughout, including sash windows and exposed beams. Arranged over three floors it briefly comprises, entrance hall, lounge, kitchen/ dining room, WC, utility and store room to the ground floor. To the first floor there are two bedrooms and a bathroom, with two further bedrooms and bathroom to the second floor. Outside there is a good sized courtyard to rear. King's Lynn town centre has a wide range of amenities including shops, schools and leisure facilities. There is a main line station with rail links to Ely, Cambridge and London's Kings Cross Station.

Tenure

Freehold

Ground Floor

Entrance hall, lounge, kitchen/ dining room, WC, utility and store room

First Floor

Landing, two bedrooms, bathroom

Second Floor

Two bedrooms, bathroom

Outside

Good sized courtyard garden

Viewings

Viewings are being held by appointment only. Please contact the Kings Lynn office to book your appointment

Energy Efficiency Rating (EPC)

E

Energy Efficiency Rating (EPC)

Current Rating E

Services

Interested parties are requested to make their own enquiries to the relevant authorities as to the availability of services.

Local Authority

Kings Lynn and West Norfolk Borough Council

Solicitors

Ward Gethin Archer (Kings Lynn - Regis Place), Ref: Jenna Green, Tel: 01553667217

Important Notice to Prospective Buyers:

We draw your attention to the Special Conditions of Sale within the Legal Pack, referring to other charges in addition to the purchase price which may become payable. Such costs may include Search Fees, reimbursement of Sellers costs and Legal Fees, and Transfer Fees amongst others.

Additional Fees

Buyer's Premium - £1200 inc VAT payable on exchange of contracts.

Administration Charge - £1200 inc VAT payable on exchange of contracts.

Disbursements - Please see the legal pack for any disbursements listed that may become payable by the purchaser on completion.

View Larger Map

Disclaimer: The map preview provided above is for general guidance only and may not accurately reflect the exact location or surrounding buildings. Prospective buyers and interested parties are strongly advised to independently verify the precise location and surroundings before bidding.