For Sale By Auction | 11:00, 26 March 2025 | Lot 54

Three Oaks, Norwich Road, Briston, Melton Constable, Norfolk NR24 2HT

Sold £265,000

  • Detached House
  • 3 Bedrooms
  • Tenure: Freehold

Call the team on 01603 505 100 for more information

Auction Date

Wed 26/03/2025

Auction Time

11:00

Auction Venue

Livestream Auction

Three bedroom detached house requiring updating set in 0.31 acre with ample off road parking

Located in a non-estate position, this three bedroom detached house was built by the current owners and now requires updating and possible extension to be able to realise its full potential. (subject to the necessary consents). The property offers a generous plot (0.31 acre stms) with ample off road parking, single garage and further gated storage area. The accommodation is arranged over two floors and comprises; sitting room, kitchen, conservatory and cloakroom. three bedrooms and bathroom. Services: Electric storage heaters, mains water and drainage. Briston is located 3.5 miles south-west of the Georgian market town of Holt. Agents notes: please note that there are tree preservation orders on the oak trees. Please refer to the legal pack.

Tenure

Freehold

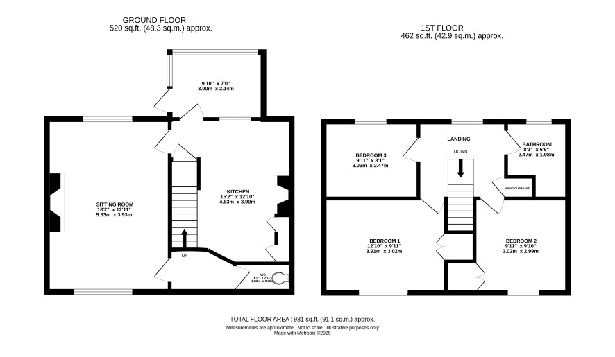
Ground Floor

Covered porch, entrance hall, sitting room, kitchen, conservatory, cloakroom.

First Floor

Three bedrooms, bathroom

Outside

Ample off road parking and storage area. Large rear garden with mature tree.

Council Tax

Band C

Viewings

Viewings are being arranged and the next are Tuesday 25th March. Please contact the Norwich Office to book an appointment.

Energy Efficiency Rating (EPC)

Current Rating D

Services

Interested parties are requested to make their own enquiries to the relevant authorities as to the availability of services.

Local Authority

North Norfolk District Council

Solicitors

Butcher Andrews (Fakenham), Ref: Lydia Larkman, Tel: 01328 852826

Offered in association with

Bailey Bird and Warren

Important Notice to Prospective Buyers:

We draw your attention to the Special Conditions of Sale within the Legal Pack, referring to other charges in addition to the purchase price which may become payable. Such costs may include Search Fees, reimbursement of Sellers costs and Legal Fees, and Transfer Fees amongst others.

Additional Fees

Buyer's Premium - £900 inc VAT payable on exchange of contracts.

Administration Charge - £1200 inc VAT payable on exchange of contracts.

Disbursements - Please see the legal pack for any disbursements listed that may become payable by the purchaser on completion.

View Larger Map

Disclaimer: The map preview provided above is for general guidance only and may not accurately reflect the exact location or surrounding buildings. Prospective buyers and interested parties are strongly advised to independently verify the precise location and surroundings before bidding.