For Sale By Auction | 11:00, 26 March 2025 | Lot 119 - Available Post Auction

Copperfields, 16 Trafalgar Road, Great Yarmouth, Norfolk NR30 2LD

*Guide | £180,000 (plus fees)

  • Guest House
  • 10 Bedrooms
  • Tenure: Freehold

Call the team on 01603 505 100 for more information

Auction Date

Wed 26/03/2025

Auction Time

11:00

Auction Venue

Livestream Auction

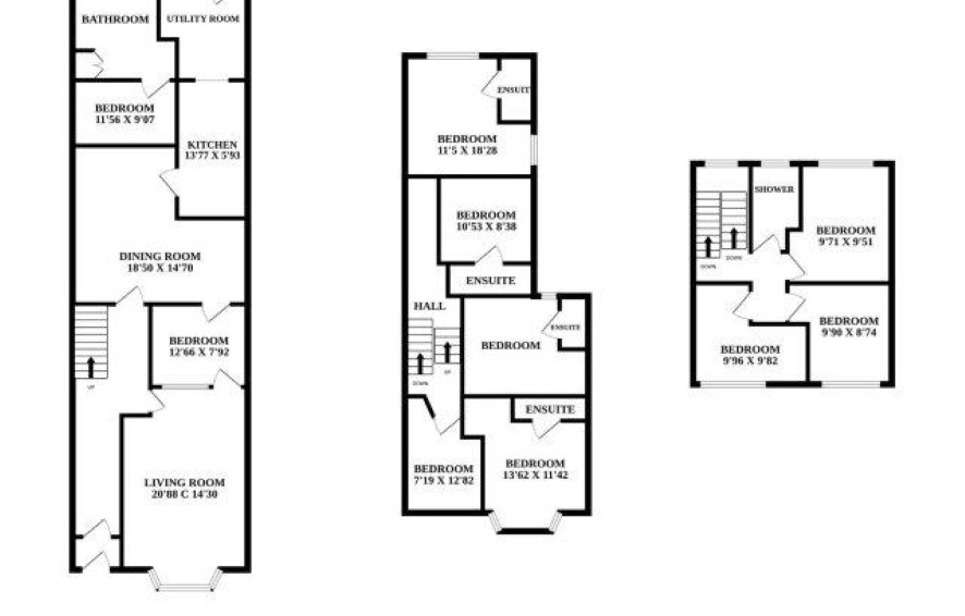
This substantial 10 bedroom 2 Star guest house is in good order throughout and has been run as a business for a number of years.

This three storey property offers 10 bedrooms, most with ensuite facilities, and is situated in the popular hospitality area of Great Yarmouth. Rated 2 Star this property is in good decorative order throughout, being well-maintained and has regular returning guests each year. For those looking for a guest house business within a busy seaside resort, it would make an ideal venture. The accommodation could be adapted to self-catering holiday apartments subject to planning with the council. Great Yarmouth is a well-known thriving seaside resort on the east coast of Norfolk and offers many amenities including the Pleasure Beach and Gardens and Sea Life centre on the seafront.

Tenure

Freehold

Council Tax Band

A

Viewings

Viewings are being held by appointment only. Please contact the Norwich Office to book your appointment time.

Energy Efficiency Rating (EPC)

Current Rating C

Services

Interested parties are requested to make their own enquiries to the relevant authorities as to the availability of services.

Local Authority

Great Yarmouth Borough Council

Solicitors

Stanton & Partners SSW Solicitors, Ref: Claire Stanton, Tel: 07557196612

Offered in association with

Minors and Brady

Important Notice to Prospective Buyers:

We draw your attention to the Special Conditions of Sale within the Legal Pack, referring to other charges in addition to the purchase price which may become payable. Such costs may include Search Fees, reimbursement of Sellers costs and Legal Fees, and Transfer Fees amongst others.

Additional Fees

Buyer's Premium - £960 inc VAT payable on exchange of contracts.

Administration Charge - £1200 inc VAT payable on exchange of contracts.

Disbursements - Please see the legal pack for any disbursements listed that may become payable by the purchaser on completion.

View Larger Map

Disclaimer: The map preview provided above is for general guidance only and may not accurately reflect the exact location or surrounding buildings. Prospective buyers and interested parties are strongly advised to independently verify the precise location and surroundings before bidding.