For Sale By Auction | 11:00, 26 March 2025 | Lot 123

64 Haward Street, Lowestoft, Suffolk NR32 2DP

Sold £70,000

  • Terraced House
  • 3 Bedrooms
  • Tenure: Freehold

Call the team on 01603 505 100 for more information

Auction Date

Wed 26/03/2025

Auction Time

11:00

Auction Venue

Livestream Auction

Residential investment comprising a three bedroom terrace house let producing £7,200 pa

This three bedroom mid terraced property is in a row of three properties. It is currently let at £600 pcm (£7,200 pa) to an established tenant who has been in occupation since 30th September 2022 on periodic assured shorthold tenancy terms. The property benefits from gas central heating and is partly double glazed. The property is located close to the town centre near to a comprehensive range of amenities. It would make an ideal purchase for an investor looking for an attractive yield. On instruction of fixed charge receivers.

Tenure

Freehold

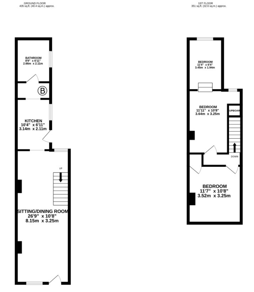
Ground floor

Sitting / dining room, kitchen, bathroom

First floor

Three bedrooms

Outside

Small front garden for bin storage, rear yard

Viewings

Viewings are being arranged in conjunction with the tenant. The next are on Friday 21st March. To book an appointment please call the Norwich office.

Note

Evidence of movement has been noted in the form of cracked render, internal cracking, cracking to masonry and uneven/sloping floors. Damp staining has been noted around the ceiling junction with the chimney breast within the third bedroom.

Energy Efficiency Rating (EPC)

Current Rating D

Services

Interested parties are requested to make their own enquiries to the relevant authorities as to the availability of services.

Local Authority

East Suffolk Council

Solicitors

Womble Bond Dickinson (UK) LLP, Ref: Aaron McPherson

Important Notice to Prospective Buyers:

We draw your attention to the Special Conditions of Sale within the Legal Pack, referring to other charges in addition to the purchase price which may become payable. Such costs may include Search Fees, reimbursement of Sellers costs and Legal Fees, and Transfer Fees amongst others.

Additional Fees

Buyer's Premium - £1560 inc VAT payable on exchange of contracts.

Administration Charge - £1200 inc VAT payable on exchange of contracts.

Disbursements - Please see the legal pack for any disbursements listed that may become payable by the purchaser on completion.

View Larger Map

Disclaimer: The map preview provided above is for general guidance only and may not accurately reflect the exact location or surrounding buildings. Prospective buyers and interested parties are strongly advised to independently verify the precise location and surroundings before bidding.