For Sale By Auction | 11:00, 26 March 2025 | Lot 48

2A Beck Close, Weybourne, Holt, Norfolk NR25 7HL

Sold £158,000

  • Link Detached House
  • Tenure: Freehold

Call the team on 01603 505 100 for more information

Auction Date

Wed 26/03/2025

Auction Time

11:00

Auction Venue

Livestream Auction

Four bedroom attached house requiring remedial works in popular north norfolk village

Of interest to cash buyers is this modern four bedroom attached house built in 2002 and extending to around 118 sq/m. It was damaged by a gas explosion in November 2024 and now requires partial reconstruction. The back wall of the house has been shored up with timber struts and a structural report is available within the legal pack on our website. Located almost opposite a playing field in a popular north norfolk coastal village around three miles west of Sheringham. This would suit a builder. On instruction of mortgagees.

Tenure

Freehold

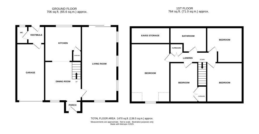
Ground floor

Porch, dining room, living room, kitchen, wc

First floor

Landing, four bedrooms, bathroom

Outside

Integral garage, off road parking to front, front and rear garden, 0.09 acre plot

Viewing

The property is not considered safe to access and so internal viewings will not permitted.

Energy Efficiency Rating (EPC)

Current Rating E

Services

Interested parties are requested to make their own enquiries to the relevant authorities as to the availability of services.

Local Authority

North Norfolk District Council

Solicitors

TLT Conveyancing, TLT LLP, Ref: TLT Conveyancing, Tel: 0330 1654201

Important Notice to Prospective Buyers:

We draw your attention to the Special Conditions of Sale within the Legal Pack, referring to other charges in addition to the purchase price which may become payable. Such costs may include Search Fees, reimbursement of Sellers costs and Legal Fees, and Transfer Fees amongst others.

Additional Fees

Buyer's Premium - £1560 inc VAT payable on exchange of contracts.

Administration Charge - £1200 inc VAT payable on exchange of contracts.

Disbursements - Please see the legal pack for any disbursements listed that may become payable by the purchaser on completion.

View Larger Map

Disclaimer: The map preview provided above is for general guidance only and may not accurately reflect the exact location or surrounding buildings. Prospective buyers and interested parties are strongly advised to independently verify the precise location and surroundings before bidding.