Withdrawn | Lot 74

7 Station Road, Manea, March, Cambridgeshire PE15 0JL

Withdrawn

  • Detached House
  • Tenure: Freehold

Call the team on 01733 889833 for more information

Auction Date

Wed 26/03/2025

Auction Time

11:00

Auction Venue

Livestream Auction

A seven bedroom HMO, and a brick built barn situated in the heart of the village of Manea

This seven bedroom HMO offered with vacant possession was previously a restaurant and is in need of some updating with a former income of £39,520 pa. The barn at the rear is currently being used for storage but with the necessary planning permission could convert into further residential accommodation. The village of Manea is located east of March and offers a local shop and rail link into March and Ely.

Tenure

Freehold

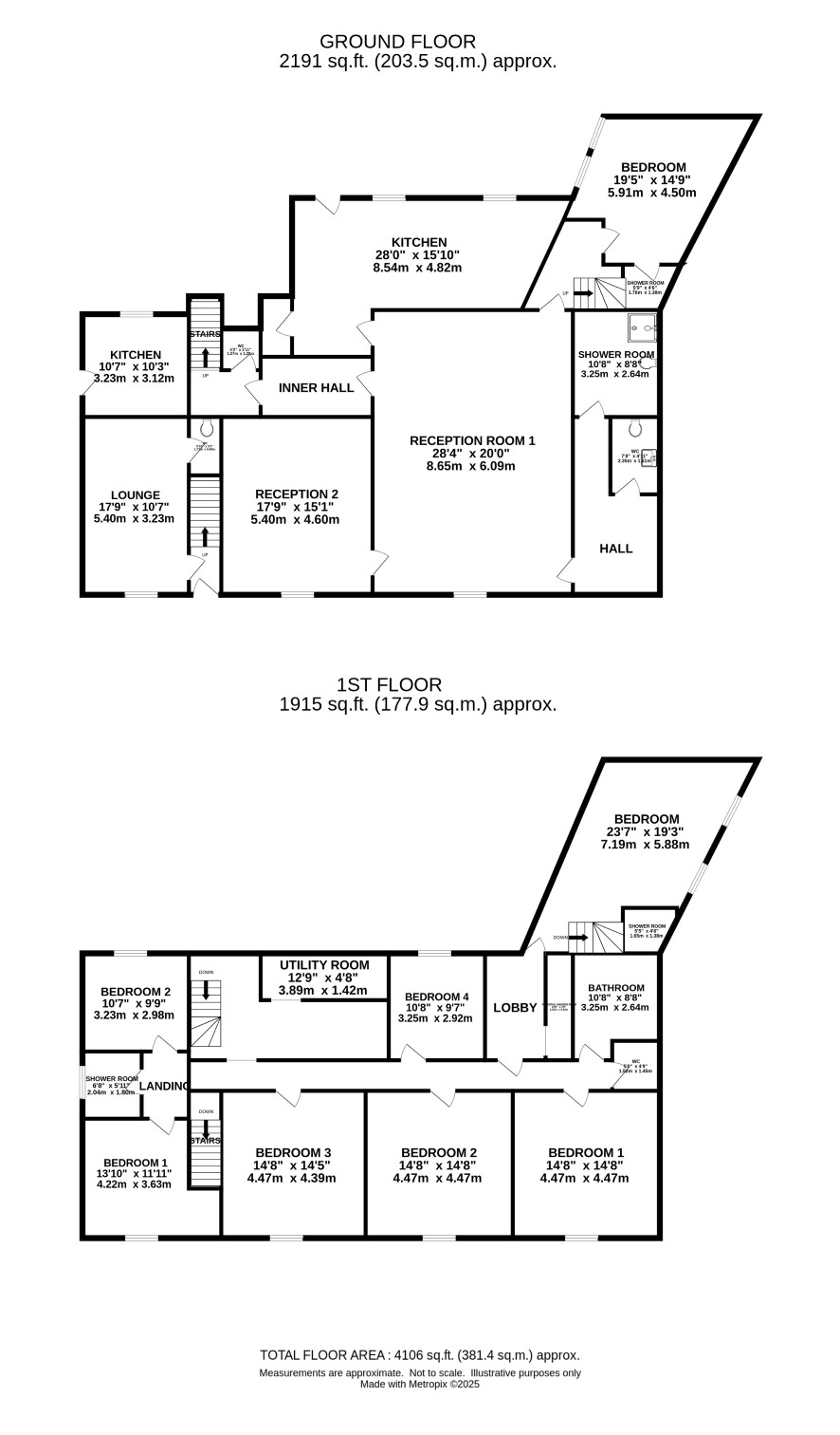
Ground Floor

Hall, w.c., shower room reception 1 reception 2/bedroom kitchen w.c and a bedroom with shower room.

First floor

Landing, five bedrooms one with shower room w.c. and a bathroom.

Outside

Drive to side to parking area and a detached brick built barn used for storage.

Energy Efficiency Rating (EPC)

Current Rating E

Services

Interested parties are requested to make their own enquiries to the relevant authorities as to the availability of services.

Local Authority

Fenland District Council

Solicitors

Taylor Rose (Peterborough), Ref: Kate Chalk, Tel: 01733 333 333

Important Notice to Prospective Buyers:

We draw your attention to the Special Conditions of Sale within the Legal Pack, referring to other charges in addition to the purchase price which may become payable. Such costs may include Search Fees, reimbursement of Sellers costs and Legal Fees, and Transfer Fees amongst others.

Additional Fees

Buyer's Premium - £1200 inc VAT payable on exchange of contracts.

Administration Charge - £1200 inc VAT payable on exchange of contracts.

Disbursements - Please see the legal pack for any disbursements listed that may become payable by the purchaser on completion.

View Larger Map

Disclaimer: The map preview provided above is for general guidance only and may not accurately reflect the exact location or surrounding buildings. Prospective buyers and interested parties are strongly advised to independently verify the precise location and surroundings before bidding.