For Sale By Auction | 11:00, 26 March 2025 | Lot 90A

42 Chester Way, Thetford, Norfolk IP24 1DZ

Sold After

  • House (unspecified)
  • 5 Bedrooms
  • Tenure: Freehold

Call the team on 01603 505 100 for more information

Auction Date

Wed 26/03/2025

Auction Time

11:00

Auction Venue

Livestream Auction

In need of some modernisation throughout, currently tenanted producing £1,668.33 pcm. Formerly had HMO license.

This three storey house is situated in the heart of Thetford and is now in need of some modernisation throughout. Currently tenanted the house yields £20,020 p/a however the former HMO license with Breckland Council has expired. The generous accommodation spans three floors with garage and garden and would make an ideal spacious family home or for those of you that want an investment could provide a good yield. The property also offers garage and rear garden. The American airbase of Mildenhall and Lakenheath are also nearby making this a great opportunity.

Tenure

Freehold

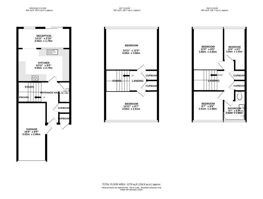
Ground floor

Entrance hall, cloakroom, kitchen, sitting room, stairs to first floor

First floor

Landing with stairs to second floor, two double bedrooms

Second floor

Three bedrooms and family bathroom

Exterior

Outside there is a walled front garden with store, driveway leading to single garage with up and over door. Gated access can be obtained at the rear to an enclosed garden which is well maintained by the tenants.

Council Tax Band

A

Energy Efficiency Rating (EPC)

Current Rating F

Services

Interested parties are requested to make their own enquiries to the relevant authorities as to the availability of services.

Local Authority

Breckland Council

Solicitors

Spire Solicitors LLP (Norwich), Ref: Tracy Guest, Tel: 01603 886221

Important Notice to Prospective Buyers:

We draw your attention to the Special Conditions of Sale within the Legal Pack, referring to other charges in addition to the purchase price which may become payable. Such costs may include Search Fees, reimbursement of Sellers costs and Legal Fees, and Transfer Fees amongst others.

Additional Fees

Buyer's Premium - £960 inc VAT payable on exchange of contracts.

Administration Charge - £1200 inc VAT payable on exchange of contracts.

Disbursements - Please see the legal pack for any disbursements listed that may become payable by the purchaser on completion.

View Larger Map

Disclaimer: The map preview provided above is for general guidance only and may not accurately reflect the exact location or surrounding buildings. Prospective buyers and interested parties are strongly advised to independently verify the precise location and surroundings before bidding.