For Sale By Auction | 11:00, 08 May 2025 | Lot 35

9 The Street, Sporle, King's Lynn, Norfolk PE32 2EA

Sold £142,000

  • Detached Bungalow
  • Tenure: Freehold

Call the team on 01603 505 100 for more information

Auction Date

Thu 08/05/2025

Auction Time

11:00

Auction Venue

Livestream Auction

Two bedroom detached bungalow of non standard construction requiring updating

Of interest to cash buyers is this two bedroom timber framed detached bungalow with brick outer shell. Known as Taprosa it is in good decorative order and benefits from double glazing, oil fired central heating and occupies a generous plot. It has been in the same ownership for nearly 30 years and is now to be sold with vacant possession. It requires modernisation to realise its full potential. The property is located around three miles north east of Swaffham. On instruction of an executor

Tenure

Freehold

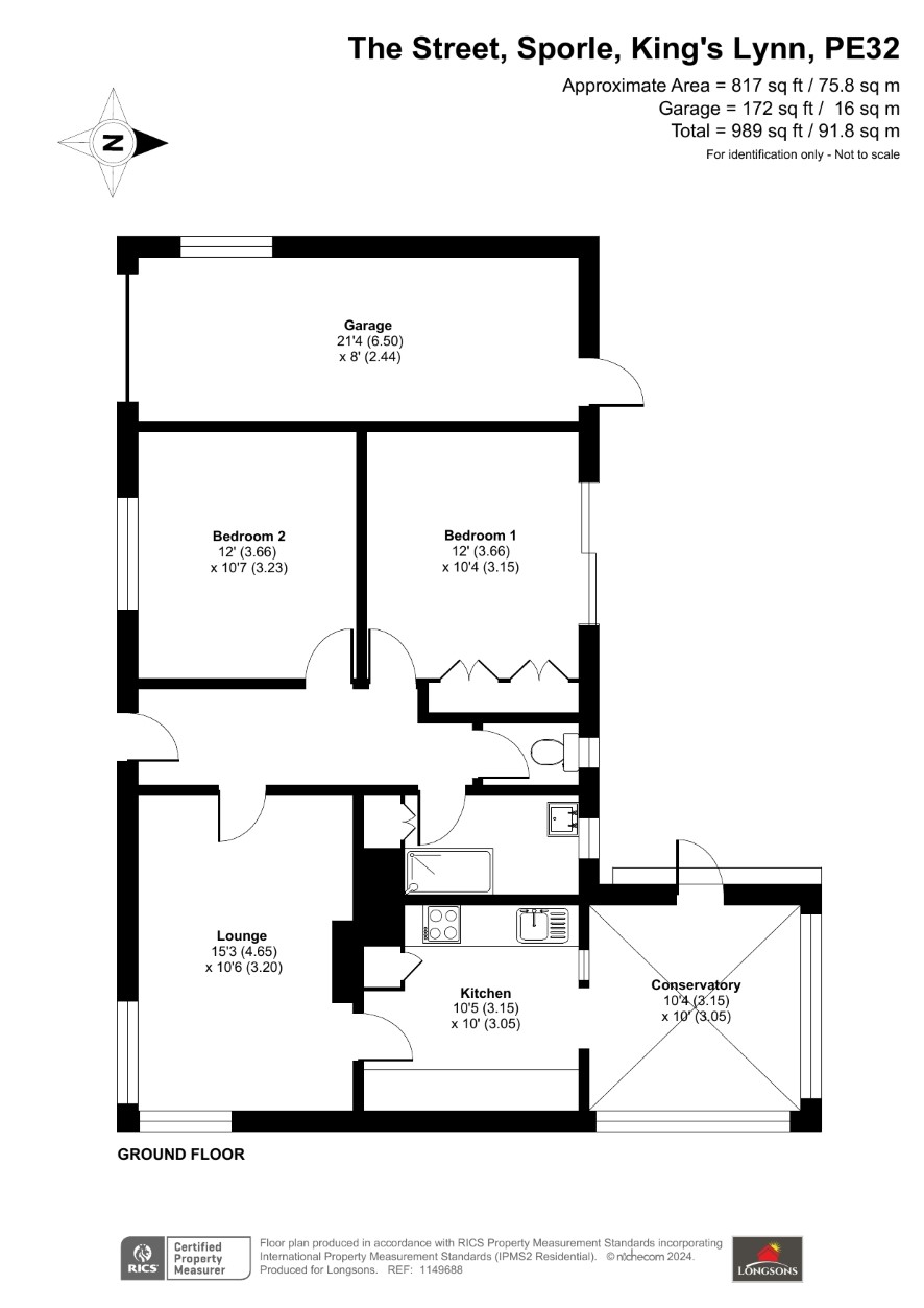
Ground floor

Entrance hall, two bedrooms, lounge, kitchen, wc, shower room, conservatory

Outside

Driveway providing off-road parking and access to the single attached garage, front garden laid mainly to shingle, rear garden laid mainly to lawn, timber garden storage shed.

Council Tax Band

B

Viewings

The next viewing is on Wednesday 30th April. To book an appointment please call the Norwich office on 01603 505100.

Energy Efficiency Rating (EPC)

Current Rating F

Services

Interested parties are requested to make their own enquiries to the relevant authorities as to the availability of services.

Local Authority

Breckland Council

Solicitors

Hayes and Storr (Swaffham), Ref: Diane Raven, Tel: 01760724424

Important Notice to Prospective Buyers:

We draw your attention to the Special Conditions of Sale within the Legal Pack, referring to other charges in addition to the purchase price which may become payable. Such costs may include Search Fees, reimbursement of Sellers costs and Legal Fees, and Transfer Fees amongst others.

Additional Fees

Buyer's Premium - £960 inc VAT payable on exchange of contracts.

Administration Charge - £1200 inc VAT payable on exchange of contracts.

Disbursements - Please see the legal pack for any disbursements listed that may become payable by the purchaser on completion.

View Larger Map

Disclaimer: The map preview provided above is for general guidance only and may not accurately reflect the exact location or surrounding buildings. Prospective buyers and interested parties are strongly advised to independently verify the precise location and surroundings before bidding.