For Sale By Auction | 11:00, 08 May 2025 | Lot 60

17 Yarmouth Road, North Walsham, Norfolk NR28 9AT

Sold £244,000

  • Detached House
  • 3 Bedrooms
  • Tenure: Freehold

Call the team on 01603 505 100 for more information

Auction Date

Thu 08/05/2025

Auction Time

11:00

Auction Venue

Livestream Auction

Three bedroom detached house subject to regulated tenancy producing £8,820 pa

This three bedroom detached house extends to around 93 sq/m and is set well back from the road occupying a generous plot of around 0..22 of an acre (stms). It is in good decorative order, is double glazed and has oil fired central heating. It is sold subject to a regulated tenancy which commenced 11th August 1979 and the current rent is £735 pcm (£8,820 pa) with effect from 9th December 2023. The property is situated around half a mile south of the town centre. An ideal purchase for a long term investor.

Tenure

Freehold

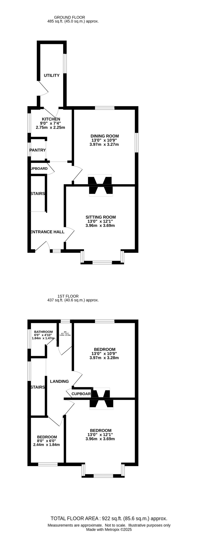
Ground floor

Entrance hall, sitting room, dining room, kitchen, pantry, utility

First floor

Landing, three bedrooms, bathroom, wc

Outside

Front and rear garden, outbuildings, off road parking

Rent Register

The property is on the rent register. Registraion number: R32935012 Details can be found at gov.uk/check-register-rents

Council Tax Band

D

Viewings

Individual viewings can be arranged and the next are on Monday 14th and Monday 28th April - please call to arrange the next available slot.

Energy Efficiency Rating (EPC)

Current Rating E

Services

Interested parties are requested to make their own enquiries to the relevant authorities as to the availability of services.

Local Authority

North Norfolk District Council

Solicitors

Ward Gethin Archer (Dereham), Ref: Lauren Dilworth, Tel: 01354 691814

Important Notice to Prospective Buyers:

We draw your attention to the Special Conditions of Sale within the Legal Pack, referring to other charges in addition to the purchase price which may become payable. Such costs may include Search Fees, reimbursement of Sellers costs and Legal Fees, and Transfer Fees amongst others.

Additional Fees

Buyer's Premium - £960 inc VAT payable on exchange of contracts.

Administration Charge - £1200 inc VAT payable on exchange of contracts.

Disbursements - Please see the legal pack for any disbursements listed that may become payable by the purchaser on completion.

View Larger Map

Disclaimer: The map preview provided above is for general guidance only and may not accurately reflect the exact location or surrounding buildings. Prospective buyers and interested parties are strongly advised to independently verify the precise location and surroundings before bidding.