For Sale By Auction | 11:00, 08 May 2025 | Lot 7

40 Victoria Street, Norwich, Norfolk NR1 3QX

Sold £347,000

  • Semi-Detached House
  • Tenure: Freehold

Call the team on 01603 505 100 for more information

Auction Date

Thu 08/05/2025

Auction Time

11:00

Auction Venue

Livestream Auction

Grade II listed four bedroom attached house with off road parking requiring improvement

This Grade II listed four bedroom attached house dates from the early 19th century. It has considerable character and appeal and benefits from gas central heating and off road parking. Previously a health clinic it now requires some reconfiguration and updating to realise its full potential. The property would suit an owner occupier or investor. It is located close just south of the heart of Norwich, being within a short walk of the main shopping facilities, the bus station and city college.

Tenure

Freehold

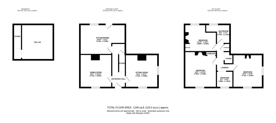
Lower ground floor

Cellar

Ground floor

Entrance hall, sitting room, room, kitchen / dining room

First floor

Landing, four bedrooms, bathroom

Outside

Rear yard, off road parking for two cars at front, front and side garden

Viewings

Open viewings are arranged and the next are on Friday 25 April and Thursday, 01 May. To book an appointment please call the Norwich office.

Energy Efficiency Rating (EPC)

Current Rating D

Services

Interested parties are requested to make their own enquiries to the relevant authorities as to the availability of services.

Local Authority

Norwich City Council

Solicitors

nplaw, Ref: Deborah Batch, Tel: 01603 223519

Important Notice to Prospective Buyers:

We draw your attention to the Special Conditions of Sale within the Legal Pack, referring to other charges in addition to the purchase price which may become payable. Such costs may include Search Fees, reimbursement of Sellers costs and Legal Fees, and Transfer Fees amongst others.

Additional Fees

Buyer's Premium - £960 inc VAT payable on exchange of contracts.

Administration Charge - £1200 inc VAT payable on exchange of contracts.

Disbursements - Please see the legal pack for any disbursements listed that may become payable by the purchaser on completion.

View Larger Map

Disclaimer: The map preview provided above is for general guidance only and may not accurately reflect the exact location or surrounding buildings. Prospective buyers and interested parties are strongly advised to independently verify the precise location and surroundings before bidding.