For Sale By Auction | 11:00, 08 May 2025 | Lot 32

78 & 78a & Building Plot to rear of High Street, Gorleston, Great Yarmouth, Norfolk NR31 6RQ

Sold £137,000

  • Mixed Use
  • 1 Bedroom
  • Tenure: Freehold

Call the team on 01603 505 100 for more information

Auction Date

Thu 08/05/2025

Auction Time

11:00

Auction Venue

Livestream Auction

Great investment for a mixed use property with building plot to rear in a prominent position in the High Street in Gorleston.

Ideal mixed use investment opportunity offering a shop on the ground floor, with separate access to a one bedroom duplex flat above. Currently vacant, the shop was producing £6,000 pa and the flat above in good decorative order has just been let on AST producing £775 pcm to include the electric costs. On the land at the rear of the property, planning permission has been granted by Great Yarmouth Borough Council for a single storey dwelling Ref: 06/07/0973/F. Once built this would create further income. This opportunity would suit an investor/builder searching for an investment in the local area.

Tenure

Freehold

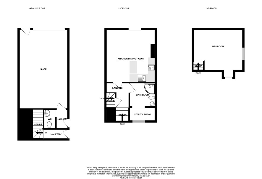
Shop

Retail area with lobby and W.C. to rear

Flat

Stairs lead to first floor, sitting room, kitchen, shower room and utility area, stairs to second floor bedroom

Building plot

Accessed to the side of the building the rear garden has been granted planning permission for a single story dwelling Ref: 06/07/0973/F

Council Tax Band

A

Viewings

Viewings are arranged and the next are on Monday 3 March. To book an appointment please call the Norwich office.

Energy Efficiency Rating (EPC)

Current Rating B (Shop)

Services

Interested parties are requested to make their own enquiries to the relevant authorities as to the availability of services.

Local Authority

Great Yarmouth Borough Council

Solicitors

Taylor Rose (Peterborough), Ref: Shannon Beare, Tel: 01733 828082

Important Notice to Prospective Buyers:

We draw your attention to the Special Conditions of Sale within the Legal Pack, referring to other charges in addition to the purchase price which may become payable. Such costs may include Search Fees, reimbursement of Sellers costs and Legal Fees, and Transfer Fees amongst others.

Additional Fees

Buyer's Premium - £960 inc VAT payable on exchange of contracts.

Administration Charge - £1200 inc VAT payable on exchange of contracts.

Disbursements - Please see the legal pack for any disbursements listed that may become payable by the purchaser on completion.

View Larger Map

Disclaimer: The map preview provided above is for general guidance only and may not accurately reflect the exact location or surrounding buildings. Prospective buyers and interested parties are strongly advised to independently verify the precise location and surroundings before bidding.