Postponed | Lot 86

395 Quayside Drive, Colchester, Essex CO2 8GT

Postponed

  • Flat
  • 2 Bedrooms
  • Tenure: Leasehold. 155 Years from April 2005

Call the team on 01473 558 888 for more information

Auction Date

Thu 08/05/2025

Auction Time

11:00

Auction Venue

Livestream Auction

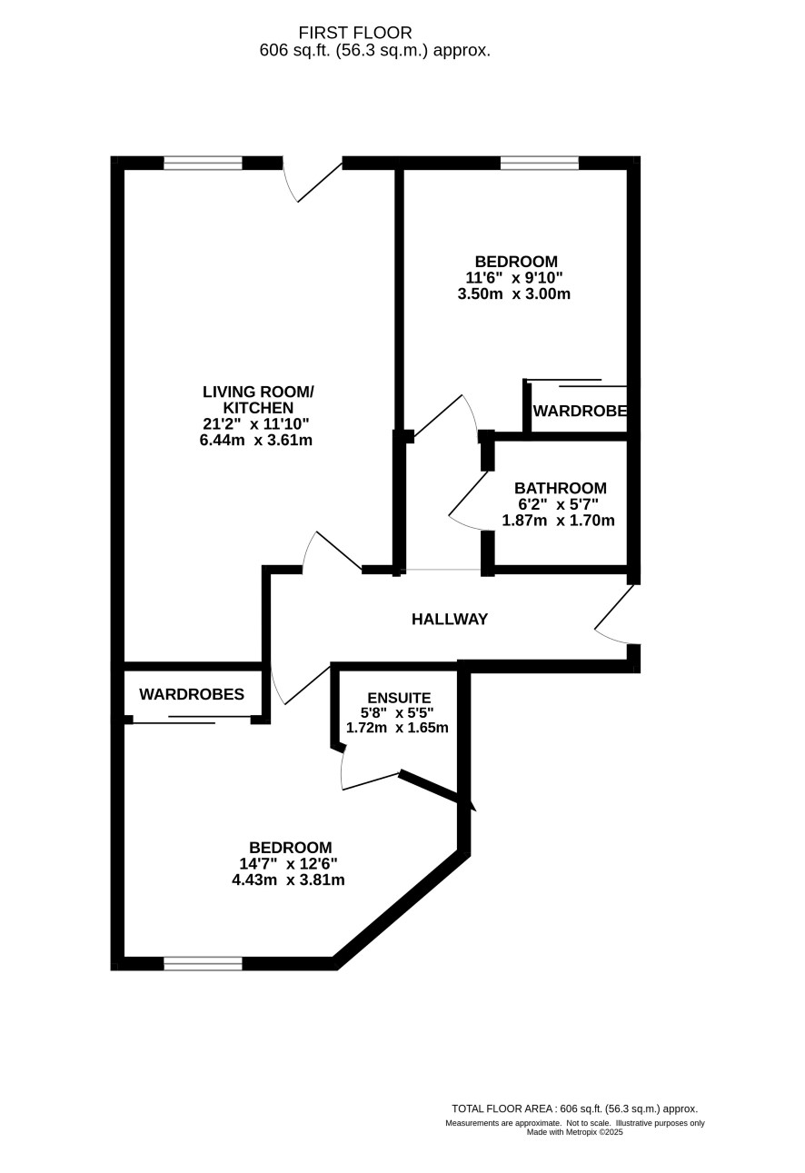
A tenanted two bedroom, two bathroom first floor floor flat in good order throughout

Situated in the Hythe area to the south east of the city centre is this modern purpose built first floor flat. The property offers 2 bedroom, 2 bathroom accommodation together with allocated parking and is currently let to an established tenant who's been in situ since August 2022 at a current rent of £1,000 per calendar month. We consider this to be a strong investment opportunity which would grace any portfolio.

Tenure

Leasehold. 155 Years from April 2005

Leasehold Information

Term : 135 (years remaining) Annual ground rent amount : £216.00 Annual service charge amount : £2315.44

Council Tax Band

C

Energy Efficiency Rating (EPC)

Current Rating B

Services

Interested parties are requested to make their own enquiries to the relevant authorities as to the availability of services.

Local Authority

Colchester Borough Council

Solicitors

Leathes Prior (The Close), Ref: Rachael Hughes, Tel: 01603 281004

Important Notice to Prospective Buyers:

We draw your attention to the Special Conditions of Sale within the Legal Pack, referring to other charges in addition to the purchase price which may become payable. Such costs may include Search Fees, reimbursement of Sellers costs and Legal Fees, and Transfer Fees amongst others.

Additional Fees

Buyer's Premium - £1800 inc VAT payable on exchange of contracts.

Administration Charge - £1200 inc VAT payable on exchange of contracts.

Disbursements - Please see the legal pack for any disbursements listed that may become payable by the purchaser on completion.

View Larger Map

Disclaimer: The map preview provided above is for general guidance only and may not accurately reflect the exact location or surrounding buildings. Prospective buyers and interested parties are strongly advised to independently verify the precise location and surroundings before bidding.