Withdrawn | Lot 30

The Garage, The Street, Norton Subcourse, Norfolk NR14 6RS

Withdrawn

  • Residential Development
  • Tenure: Freehold

Call the team on 01603 505 100 for more information

Auction Date

Thu 08/05/2025

Auction Time

11:00

Auction Venue

Livestream Auction

Building plot with planning permission for a substantial 4 bedroom detached house

This former vehicle repair garage site comprises of two title numbers NK424438 and NK73174 giving a combined area of 0.17 of an acre. It is in a sought after established residential area with houses either side and has full planning permission to demolish and build a detached 2,000 sq/ft four bedroom house. The new dwelling will provide off-road parking and gardens in an attractive semi rural setting. We are informed the site is not affected by Nutrient neutrality restrictions. The site is located within a popular village less than four miles east of Loddon. A great project for a builder / developer.

Tenure

Freehold

Existing accommodation

Two large garages with inspection pits, one garage has an office. Ample off road parking at the front. Further storage sheds to rear.

Planning

Full planning permission was granted by South Norfolk Council on 6th February 2025 for detached dwelling with attached single garage. Application number 2022/0011. Further details and plans can be found on the public access website of South Norfok Council southnorfolkandbroadland.gov.uk/planning.

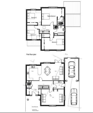
Proposed Accommodation

Ground floor: Entrance hall, living room, utility, sitting / dining room, kitchen, wc First floor: landing, four bedrooms of which one ensuite, bathroom Outside: attached garage

Note

Please would all interested parties register their interest with the Auctioneers in order that they may be kept up to date with any developments.

Services

Interested parties are requested to make their own enquiries to the relevant authorities as to the availability of services.

Local Authority

South Norfolk Council

Solicitors

Cozens-Hardy LLP, Ref: Dan Evans, Tel: 01603 724676

Offered in association with

Martin Smith Partnership

Important Notice to Prospective Buyers:

We draw your attention to the Special Conditions of Sale within the Legal Pack, referring to other charges in addition to the purchase price which may become payable. Such costs may include Search Fees, reimbursement of Sellers costs and Legal Fees, and Transfer Fees amongst others.

Additional Fees

Buyer's Premium - £960 inc VAT payable on exchange of contracts.

Administration Charge - £1200 inc VAT payable on exchange of contracts.

Disbursements - Please see the legal pack for any disbursements listed that may become payable by the purchaser on completion.

View Larger Map

Disclaimer: The map preview provided above is for general guidance only and may not accurately reflect the exact location or surrounding buildings. Prospective buyers and interested parties are strongly advised to independently verify the precise location and surroundings before bidding.