For Sale By Auction | 11:00, 08 May 2025 | Lot 149

White Gate, Blundeston Road, Corton, Lowestoft, Suffolk NR32 5DD

Sold £235,000

  • Detached Bungalow
  • 4 Bedrooms
  • Tenure: Freehold

Call the team on 01603 505 100 for more information

Auction Date

Thu 08/05/2025

Auction Time

11:00

Auction Venue

Livestream Auction

A four bedroom detached bungalow set within 0.47 acres (stms) requiring complete modernisation.

Of interest to cash buyers is this four bedroom detached bungalow set in 0.47 acre (stms) located in the village of Corton, near Lowestoft and now presents an exciting opportunity for refurbishment or possible redevelopment (subject to necessary planning permissions). The bungalow offers ample outdoor space with plenty of potential for expansion or landscaping. It also includes a covered area and a single asbestos garage/workshop, with additional off-road parking available, providing convenience and flexibility. Situated in a popular residential area, the property offers a village setting while being close to local amenities and the coast.

Tenure

Freehold

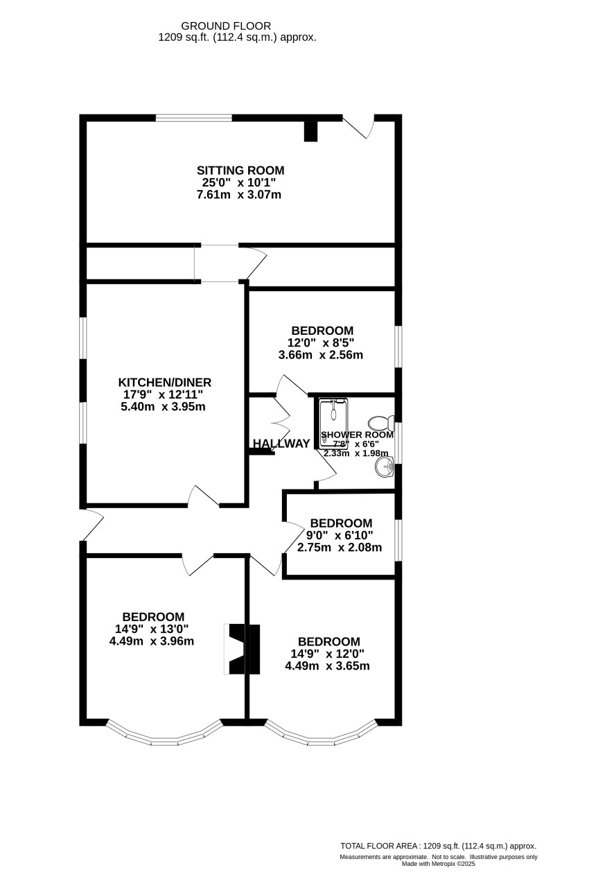
Accommodation

Entrance Hall, four bedroom, shower room, kitchen/dining room, living room,

Outside

Driveway providing off road parking , lawned front and rear garden. large covered outbuilding with (asbestos) garage set within. Set within 0.47 acre.

Agents Note

Oil fired central heating (Not in working order) Mains Water Drainage: Private Drainage Septic Tank

Viewings

Viewings are available by appointment only and the final scheduled date is Tuesday 6 May To arrange a viewing, please contact our Norwich office.

Council Tax Band

E

Energy Efficiency Rating (EPC)

Current Rating F

Services

Interested parties are requested to make their own enquiries to the relevant authorities as to the availability of services.

Local Authority

East Suffolk Council

Solicitors

Spire Solicitors LLP (Norwich), Ref: Tracy Guest, Tel: 01603 886221

Important Notice to Prospective Buyers:

We draw your attention to the Special Conditions of Sale within the Legal Pack, referring to other charges in addition to the purchase price which may become payable. Such costs may include Search Fees, reimbursement of Sellers costs and Legal Fees, and Transfer Fees amongst others.

Additional Fees

Buyer's Premium - £960 inc VAT payable on exchange of contracts.

Administration Charge - £1200 inc VAT payable on exchange of contracts.

Disbursements - Please see the legal pack for any disbursements listed that may become payable by the purchaser on completion.

View Larger Map

Disclaimer: The map preview provided above is for general guidance only and may not accurately reflect the exact location or surrounding buildings. Prospective buyers and interested parties are strongly advised to independently verify the precise location and surroundings before bidding.