For Sale By Auction | 11:00, 08 May 2025 | Lot 123

175 Lynn Road, Wisbech, Cambridgeshire PE13 3DH

Sold £271,500

  • Block of Apartments
  • Tenure: Freehold

Call the team on 01553 777 773 for more information

Auction Date

Thu 08/05/2025

Auction Time

11:00

Auction Venue

Livestream Auction

An investment opportunity to purchase a block of four flats, all let currently producing £29,820 pa

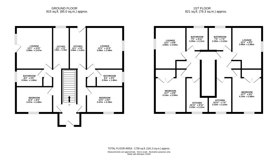
This is a superb opportunity to purchase these four flats all in one block with their own parking space and communal garden. Currently producing £29,820 pa (£2,485 pcm) The four flats all comprise of a lounge, kitchen, bedroom and bathroom and are all in good condition. The two ground floor flats also have their own external access. The flats are conveniently located on the outskirts of Wisbech town centre and close to amenities and a bus route to Kings Lynn and Peterborough.

Tenure

Freehold

Ground Floor

Two flats each comprising lounge, kitchen, bedroom and bathroom

First Floor

Two flats each comprising lounge, kitchen, bedroom and bathroom

Outside

Communal garden, one allocated parking space per flat

Council Tax Band

A

Energy Efficiency Rating (EPC)

Current Rating D, E, E, E

Services

Interested parties are requested to make their own enquiries to the relevant authorities as to the availability of services.

Local Authority

Fenland District Council

Solicitors

Leathes Prior (The Close), Ref: Joanna Allen, Tel: 01603 281009

Important Notice to Prospective Buyers:

We draw your attention to the Special Conditions of Sale within the Legal Pack, referring to other charges in addition to the purchase price which may become payable. Such costs may include Search Fees, reimbursement of Sellers costs and Legal Fees, and Transfer Fees amongst others.

Additional Fees

Buyer's Premium - £1200 inc VAT payable on exchange of contracts.

Administration Charge - £1200 inc VAT payable on exchange of contracts.

Disbursements - Please see the legal pack for any disbursements listed that may become payable by the purchaser on completion.

View Larger Map

Disclaimer: The map preview provided above is for general guidance only and may not accurately reflect the exact location or surrounding buildings. Prospective buyers and interested parties are strongly advised to independently verify the precise location and surroundings before bidding.