Postponed | Lot 116

Development Land Indigo Road, Stoke Ferry, Norfolk PE33 9TJ

Postponed

  • Land
  • Tenure: Freehold

Call the team on 01553 777 773 for more information

Auction Date

Thu 08/05/2025

Auction Time

11:00

Auction Venue

Livestream Auction

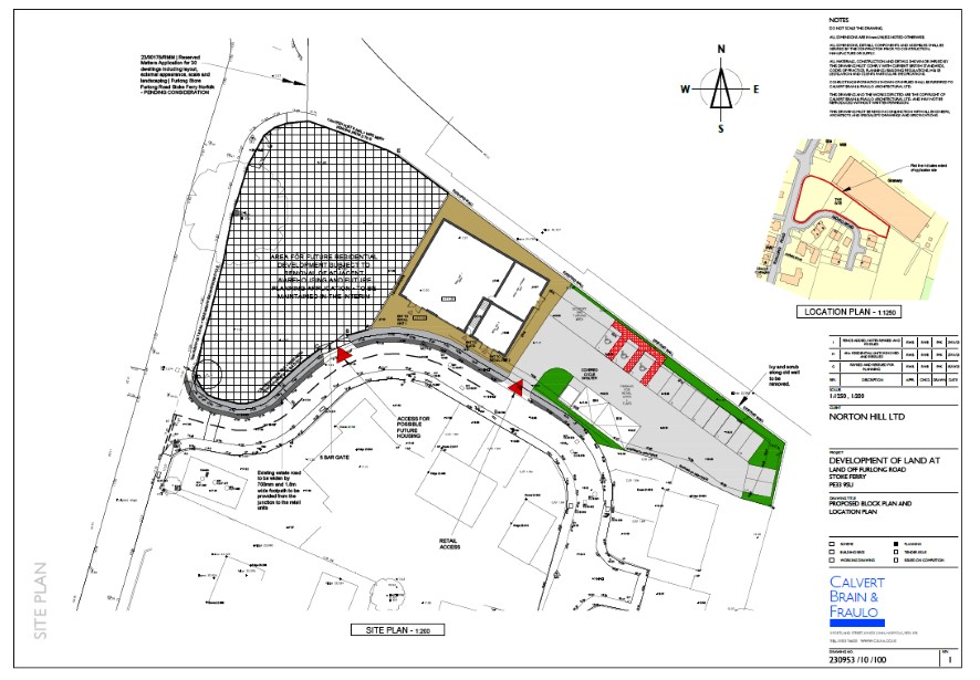
An opportunity to purchase a development site with planning for two retail units and two residential flats

A planning application has been granted for the construction of two retail units (with storage) plus associated parking and access and 2 x two bedroom flats to be held in association with the retail units. Details can be found under planning reference number 23/00605/O via the Borough Council of Kings Lynn and West Norfolk planning portal. The land comprises approximately 0.34 acres of development land which is part hard standing. The land has a frontage of approx. 40m to Indigo Road and an average depth of approx. 20m. The land is situated just off Furlong Road, on Indigo Road a small development of modern properties in the village of Stoke Ferry.

Tenure

Freehold

Development Site

Planning for 2x retail units and 2x two bedroom flats

Viewing

Any reasonable time during daylight hours. Prospective purchasers should note that no liability can be held against either the vendor or the Agents, Auction House East Anglia as Auctioneers, in respect of any viewing of the land. All persons viewing should be aware that they enter the site entirely at their own risk.

Services

Interested parties are requested to make their own enquiries to the relevant authorities as to the availability of services.

Local Authority

Kings Lynn and West Norfolk Borough Council

Solicitors

Hawkins Ryan, Ref: Paul Sheerin, Tel: 01553 691661

Important Notice to Prospective Buyers:

We draw your attention to the Special Conditions of Sale within the Legal Pack, referring to other charges in addition to the purchase price which may become payable. Such costs may include Search Fees, reimbursement of Sellers costs and Legal Fees, and Transfer Fees amongst others.

Additional Fees

Buyer's Premium - £1500 inc VAT payable on exchange of contracts.

Administration Charge - £1200 inc VAT payable on exchange of contracts.

Disbursements - Please see the legal pack for any disbursements listed that may become payable by the purchaser on completion.

View Larger Map

Disclaimer: The map preview provided above is for general guidance only and may not accurately reflect the exact location or surrounding buildings. Prospective buyers and interested parties are strongly advised to independently verify the precise location and surroundings before bidding.