For Sale By Auction | 11:00, 08 May 2025 | Lot 9

7 School Road, Bracon Ash, Norwich, Norfolk NR14 8HG

Sold £191,000

  • Semi-Detached House
  • 3 Bedrooms
  • Tenure: Freehold

Call the team on 01603 505 100 for more information

Auction Date

Thu 08/05/2025

Auction Time

11:00

Auction Venue

Livestream Auction

Well presented three bedroom semi detached house ideal for owner occupier or investor

Located in the popular village of Bracon Ash, this ex-local authority house offers generous living space and large gardens, with ample off road parking at the front. The property is double glazed, has oil-fired central heating, and offers views over open fields. Extension could be possible subject to planning permission. Bracon Ash lies just a few miles south of Norwich, providing a peaceful rural setting with easy access to city amenities.

Tenure

Freehold

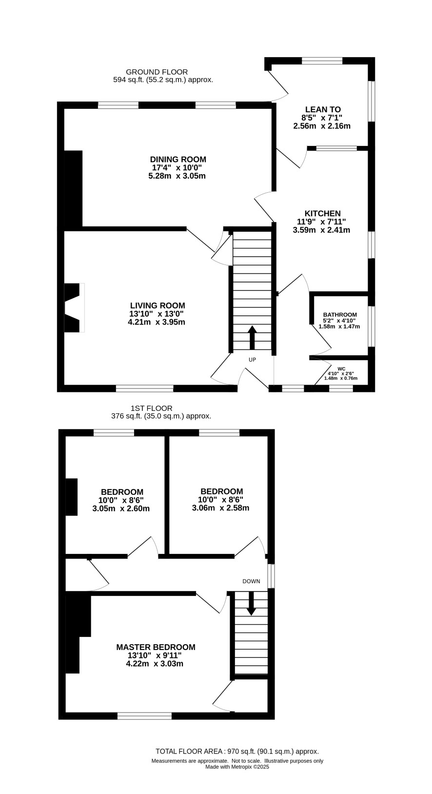
Ground Floor

Entrance hall, lounge, dining room, kitchen, bathroom, separate WC, enclosed rear lobby/utility area.

First Floor

Landing, three bedrooms

Outside

Large front and rear garden

Council Tax Band

B

Viewings

We have viewings arranged on Tuesday 29 April - please contact the Norwich office to book at appointment.

Energy Efficiency Rating (EPC)

Current Rating D

Services

Interested parties are requested to make their own enquiries to the relevant authorities as to the availability of services.

Local Authority

South Norfolk Council

Solicitors

Howes Percival (Norwich), Ref: Sally Rackham, Tel: 01603 284250

Important Notice to Prospective Buyers:

We draw your attention to the Special Conditions of Sale within the Legal Pack, referring to other charges in addition to the purchase price which may become payable. Such costs may include Search Fees, reimbursement of Sellers costs and Legal Fees, and Transfer Fees amongst others.

Additional Fees

Buyer's Premium - £900 inc VAT payable on exchange of contracts.

Administration Charge - £1200 inc VAT payable on exchange of contracts.

Disbursements - Please see the legal pack for any disbursements listed that may become payable by the purchaser on completion.

View Larger Map

Disclaimer: The map preview provided above is for general guidance only and may not accurately reflect the exact location or surrounding buildings. Prospective buyers and interested parties are strongly advised to independently verify the precise location and surroundings before bidding.