For Sale By Auction | 11:00, 08 May 2025 | Lot 94

Mon Abri, Sunnyfields Road, Bocking, Braintree, Essex CM7 5PG

Sold £320,000

  • Semi-Detached House
  • Tenure: Freehold

Call the team on 01702 939933 for more information

Auction Date

Thu 08/05/2025

Auction Time

11:00

Auction Venue

Livestream Auction

An Attractive House of Character on a quarter Acre plot offered with Vacant Possession

This semi-detached house built in 1850 forms a part of the Courtauld Estate. which is listed in the Braintree District Council Local Heritage List. The windows feature distinctive iron hexagonal glazing bars and coloured glass It is located in a very popular semi-rural location but yet within 2.5 miles from Braintree Town Centre. The house sits on a Plot of Approx. 0.25 Acres (0.103 Ha) and there is plenty of off street parking large gardens to front and rear and a number of outbuildings. There is open countryside to the rear boundary We believe there is ample scope for extension or further development of the land for an additional dwelling, subject to obtaining ALL necessary Consents. The property requires renovation/modernisation Please Note. There is an area of land to the right hand boundary which is in dispute with the Neighbours. Due to this being a Probate matter it has not been possible to resolve the dispute. Any prospective buyer is put on notice as to the existence of this dispute and will buy with this knowledge. We recommended all buyers satisfy themselves by making their own enquiries in this respect.

Tenure

Freehold

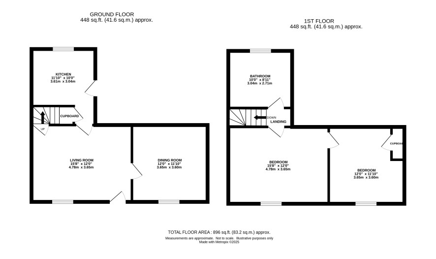
Ground Floor

Entrance Door to Living Room 15'8" x 12'6" Dining Room 12' x 11'10" Kitchen 11'10" x 10'

First Floor

Landing Doors off to Bathroom 10'8'11" Bedroom 15'8" x 12' Door to Bedroom 12' x 11'10"

Externally

Overall plot size 0.25 Acres (0.1 Hectares) Gardens to front and Rear Off street parking for several cars Garage Worksop and other Outbuilding Open Countryside to the Rear

Council Tax Band

D

Viewings

Individual viewings can be arranged. Please call the Chelmsford Office on 01702 939933 to book an appointment.

Energy Efficiency Rating (EPC)

Current Rating F

Services

Interested parties are requested to make their own enquiries to the relevant authorities as to the availability of services.

Local Authority

Braintree District Council

Solicitors

Fisher Jones Greenwood LLP (Colchester), Ref: Chloe Hawkes, Tel: 01206 835221

Offered in association with

Allcoat

Important Notice to Prospective Buyers:

We draw your attention to the Special Conditions of Sale within the Legal Pack, referring to other charges in addition to the purchase price which may become payable. Such costs may include Search Fees, reimbursement of Sellers costs and Legal Fees, and Transfer Fees amongst others.

Additional Fees

Buyer's Premium - £1200 inc VAT payable on exchange of contracts.

Administration Charge - £1200 inc VAT payable on exchange of contracts.

Disbursements - Please see the legal pack for any disbursements listed that may become payable by the purchaser on completion.

View Larger Map

Disclaimer: The map preview provided above is for general guidance only and may not accurately reflect the exact location or surrounding buildings. Prospective buyers and interested parties are strongly advised to independently verify the precise location and surroundings before bidding.