For Sale By Auction | 10:00, 18 June 2025 | Lot 22

17 Ward Road, Salhouse, Norwich, Norfolk NR13 6RG

Sold £210,000

  • Semi-Detached House
  • 3 Bedrooms
  • Tenure: Freehold

Call the team on 01603 505 100 for more information

Auction Date

Wed 18/06/2025

Auction Time

10:00

Auction Venue

Livestream Auction

1930's semi-detached house with annexe in need of updating

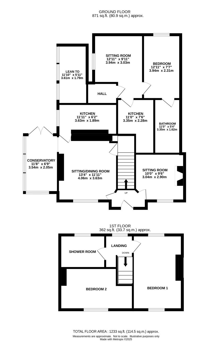
Situated in the popular Broadland village of Salhouse, this three bedroom semi-detached house will be sold vacant possession and offers an excellent opportunity for the new owner to update and redecorate to maximise the obvious potential. With versatile accommodation arranged over two floors and the added benefit of an annex. On the first floor there are two double bedrooms and bathroom all off landing. On the ground floor you have two receptions, kitchen and conservatory with internal and external access into the annex that includes a kitchen, sitting room, bedroom with en-suite bathroom - ideal for extended family, guests or potential rental use (Subject to the necessary consents). The property sits on a generous plot which is also in need of attention with off road parking and garage. Salhouse is within three miles of Wroxham and six miles east of Norwich.

Tenure

Freehold

Ground Floor

Entrance lobby, lounge, dining room, conservatory and kitchen with internal and external access into Annexe: kitchen, sitting room, bedroom 3 and bathroom.

First Floor

Landing, two bedrooms and bathroom.

Outside

Front garden with off road parking. Generous rear garden with various timber outbuildings, garage.

Council Tax Band

A

Viewings

Open viewings are being arranged for Monday 16th June - APPOINTMENT ESSENTIAL - To book a time slot please call the Norwich office on 01603 505100.

Energy Efficiency Rating (EPC)

Current Rating D, F

Services

Interested parties are requested to make their own enquiries to the relevant authorities as to the availability of services.

Local Authority

Broadland District Council

Solicitors

Spire Solicitors LLP (Norwich), Ref: Tracy Guest, Tel: 01603 886221

Important Notice to Prospective Buyers:

We draw your attention to the Special Conditions of Sale within the Legal Pack, referring to other charges in addition to the purchase price which may become payable. Such costs may include Search Fees, reimbursement of Sellers costs and Legal Fees, and Transfer Fees amongst others.

Additional Fees

Buyer's Premium - £600 inc VAT payable on exchange of contracts.

Administration Charge - £1200 inc VAT payable on exchange of contracts.

Disbursements - Please see the legal pack for any disbursements listed that may become payable by the purchaser on completion.

View Larger Map

Disclaimer: The map preview provided above is for general guidance only and may not accurately reflect the exact location or surrounding buildings. Prospective buyers and interested parties are strongly advised to independently verify the precise location and surroundings before bidding.