Call the team on 01702 939933 for more information
A detached vacant freehold chalet style house and garage requiring Improvement
This deceptively spacious house requires improvement and modernisation. It is well located in a popular residential area and within a short walk of the town centre. Benfleet Station on the mainland is some 2.5 miles distant. Thorney Bay Beach is also a little over a mile away.
Tenure
Freehold
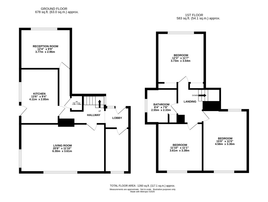
Ground Floor
Entrance lobby Entrance hall Downstairs cloakroom Lounge 20'5" x 11'7" Kitchen 13'3" x 9' Dining room/bedroom 5 12'1 x 9'7" Study/bedroom 4 10'9 x 5'8"
First Floor
Landing, doors off to Bedroom 1 15'3" x 10'10" Bedroom 2 13' x 11'2" Bedroom 3 11'7" x 11'3" Bathroom/WC 7'7'' x 7'9
Integral Garage
Externally
Good size gardens surround the house Driveway to garage.
Council Tax Band
E
Viewings
Upcoming viewing opportunities Wednesday 4th June: 14:30-15:00 Thursday 12th June: 10:00-10:30 Monday 16th June: 12:00-12:30
Energy Efficiency Rating (EPC)
Current Rating D
Services
Interested parties are requested to make their own enquiries to the relevant authorities as to the availability of services.
Local Authority
Castle Point Borough Council
Solicitors
Enact Conveyancing, PO Box Hk3, Ref: Enact Conveyancing, Tel: 0344 244 3282
Important Notice to Prospective Buyers:
We draw your attention to the Special Conditions of Sale within the Legal Pack, referring to other charges in addition to the purchase price which may become payable. Such costs may include Search Fees, reimbursement of Sellers costs and Legal Fees, and Transfer Fees amongst others.
Additional Fees
Buyer's Premium - £1500 inc VAT payable on exchange of contracts.
Administration Charge - £1200 inc VAT payable on exchange of contracts.
Disbursements - Please see the legal pack for any disbursements listed that may become payable by the purchaser on completion.
Disclaimer: The map preview provided above is for general guidance only and may not accurately reflect the exact location or surrounding buildings. Prospective buyers and interested parties are strongly advised to independently verify the precise location and surroundings before bidding.