For Sale By Auction | 10:00, 18 June 2025 | Lot 137

20, 21, 21a North Market Road, Great Yarmouth, Norfolk NR30 2DX

Sold £158,000

  • Block of Apartments
  • 6 Bedrooms
  • Tenure: Freehold

Call the team on 01603 505 100 for more information

Auction Date

Wed 18/06/2025

Auction Time

10:00

Auction Venue

Livestream Auction

High yielding freehold residential investment comprising a maisonette and two flats - two let producing £12,480 pa and one vacant

A freehold attached block of three self contained residential units comprising a maisonette and two flats. Currently numbers 20 and 21a are let on Assured Shorthold Tenancies (ASTs) and produce £120 per week each (£12,480 pa) and no 21 is vacant and in need of improvement. Fully let the property could achieve over £18,000 pa. The block has been in the same ownership for over thirty years and offers an exiting opportunity for an investor looking for a high yielding secure long term income. On instruction of an executor

Tenure

Freehold

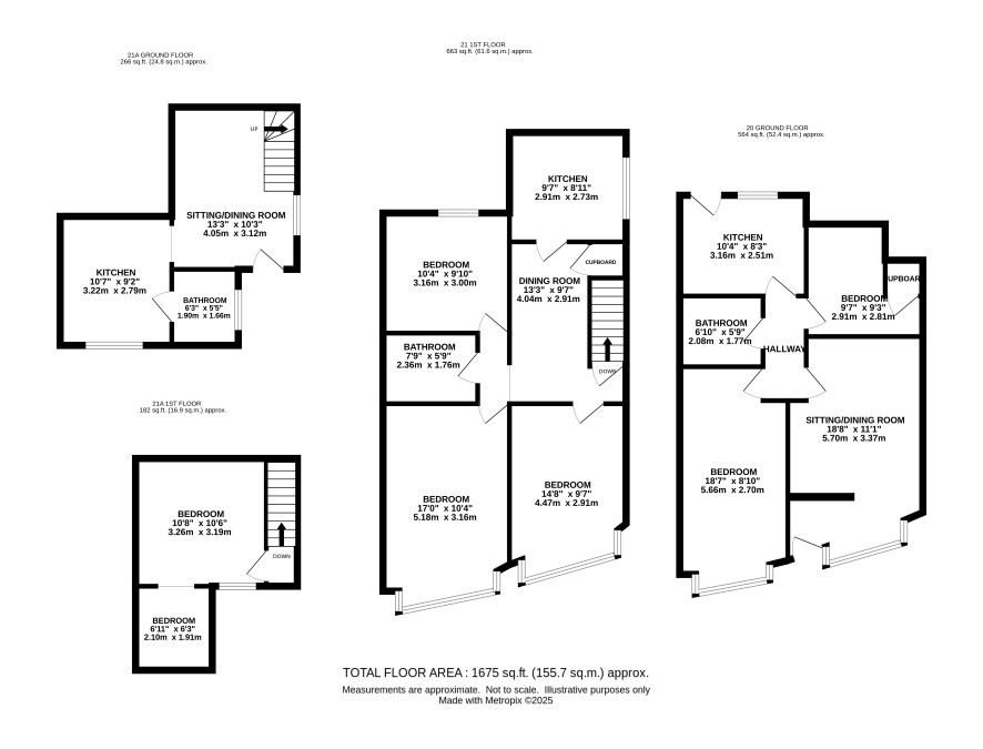
Flat 20 (564 sq/ft)

Ground Floor: Two bedrooms, bathroom, kitchen, sitting / dining room, hallway

Flat 21 (663 sq/ft)

First Floor: Two bedrooms, bathroom, kitchen, sitting room, dining room

Maisonette 21a (266 sq/ft)

Ground Floor: Kitchen, bathroom, sitting / dining room First Floor: Two bedrooms

Outside

Rear yard

Council Tax Band

A

Viewings

Viewings are in conjunction with the tenants. The next are on Wednesday 11 and Thursday 12 June. To book an appointment please call the Norwich office on 01603 505100.

Energy Efficiency Rating (EPC)

Current Rating C, D, C

Services

Interested parties are requested to make their own enquiries to the relevant authorities as to the availability of services.

Local Authority

Great Yarmouth Borough Council

Solicitors

Isadores, Ref: Harriet Chaplin, Tel: 01603 611370

Important Notice to Prospective Buyers:

We draw your attention to the Special Conditions of Sale within the Legal Pack, referring to other charges in addition to the purchase price which may become payable. Such costs may include Search Fees, reimbursement of Sellers costs and Legal Fees, and Transfer Fees amongst others.

Additional Fees

Administration Charge - £1200 inc VAT payable on exchange of contracts.

Disbursements - Please see the legal pack for any disbursements listed that may become payable by the purchaser on completion.

View Larger Map

Disclaimer: The map preview provided above is for general guidance only and may not accurately reflect the exact location or surrounding buildings. Prospective buyers and interested parties are strongly advised to independently verify the precise location and surroundings before bidding.