Sold Prior | Lot 43

41 Whitelands, Fakenham, Norfolk NR21 8EW

Sold Prior

  • Detached House
  • 3 Bedrooms
  • Tenure: Freehold

Call the team on 01603 505 100 for more information

Auction Date

Wed 18/06/2025

Auction Time

10:00

Auction Venue

Livestream Auction

Three bedroom detached house in good decorative order requiring remedial work

This three bedroom detached house was built in the early 1970s and is located near the end of a cul de sac. It is in good decorative order with a modern kitchen and bathroom and has gas fired central heating and double glazing. It requires remedial work and a report from a chartered building surveyor will be included in the online legal pack. It has been in the same ownership for many years and will now be sold with vacant possession. The property is located less than a mile north east of the town centre. On instruction of a power of attorney

Tenure

Freehold

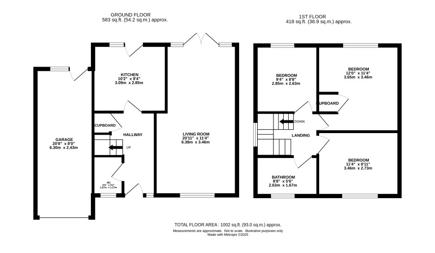
Ground floor

Entrance hall, wc, kitchen, lounge

First floor

Landing, three bedrooms, bathroom

Outside

Attached garage, off road parking, front and rear lawned garden, timber shed

Council Tax Band

C

Viewings

Open viewings are arranged on Thursday 29 May. To book the next available appointment please call the Norwich office.

Energy Efficiency Rating (EPC)

Current Rating D

Services

Interested parties are requested to make their own enquiries to the relevant authorities as to the availability of services.

Local Authority

North Norfolk District Council

Solicitors

Hayes and Storr (Fakenham), Ref: Sarah Lazzari-Bailey, Tel: 01328 863231

Important Notice to Prospective Buyers:

We draw your attention to the Special Conditions of Sale within the Legal Pack, referring to other charges in addition to the purchase price which may become payable. Such costs may include Search Fees, reimbursement of Sellers costs and Legal Fees, and Transfer Fees amongst others.

Additional Fees

Buyer's Premium - £960 inc VAT payable on exchange of contracts.

Administration Charge - £1200 inc VAT payable on exchange of contracts.

Disbursements - Please see the legal pack for any disbursements listed that may become payable by the purchaser on completion.

View Larger Map

Disclaimer: The map preview provided above is for general guidance only and may not accurately reflect the exact location or surrounding buildings. Prospective buyers and interested parties are strongly advised to independently verify the precise location and surroundings before bidding.