Sold Prior | Lot 57

45 Pentney Lakes, Common Road, Pentney, King's Lynn PE32 1LE

Sold Prior

  • Lodge
  • 4 Bedrooms
  • Tenure: Freehold

Call the team on 01553 777 773 for more information

Auction Date

Wed 18/06/2025

Auction Time

10:00

Auction Venue

Livestream Auction

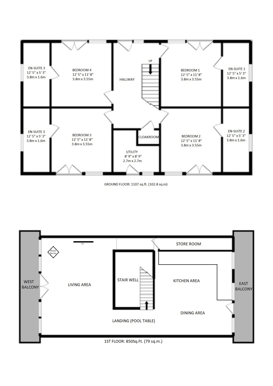
A stunning four bedroom timber-built home located in the picturesque Pentney Lakes with beautiful views of one of the lakes to the first floor.

This stunning four bedroom timber-built home could be ideal for a holiday let or second home to enjoy the surroundings. This unique property offers generous accommodation which briefly comprises entrance hall, four spacious double bedrooms, each featuring its own luxurious en-suite and utility room. The exceptional first-floor living space with open-plan kitchen, dining, and living area boasts vaulted ceilings and large window frames with majestic views of the lake and a modern, well-equipped kitchen with integrated appliances. Pentney lakes is located approximately 9 miles from Kings Lynn with its shopping facilities and mainline railway station with links to London Kings Cross. Gross Income for Holiday Let Rental: Approximately £41,083 ( for tax year Apr 2023 - Apr 2024) The property currently has 17 confirmed bookings for April 2025 to April 2026.

Tenure

Freehold

Ground Floor

Four bedrooms with en-suites, hallway, cloakroom and utility.

First Floor

Open plan living / kitchen / dining area / landing area / storage room

Garden

Rear garden set to sand with climbing frame, 2 x BBQ Tables, garden shed (empty) and rented LPG Tank (1400 ltr)

Contents

Sale includes ALL fixtures and fittings, including: 5 TV's, oven, hob, extractor, 2 fridges, microwave, toaster, cutlery, crockery, 5 beds, 3 settees, 1 arm chair, 4 wardrobes, 15 sets of bed linen, 6 sun loungers and a log burner

Vacant Possession

While the property does have vacant possession there shall be a clause stating that the purchaser must honour any existing bookings or cancellation fees become their responsibility

Energy Efficiency Rating (EPC)

Current Rating D

Services

Interested parties are requested to make their own enquiries to the relevant authorities as to the availability of services.

Local Authority

Kings Lynn and West Norfolk Borough Council

Solicitors

Setfords (Guildford), Ref: Mark Scotney, Tel: 0330 058 4011

Offered in association with

Sowerbys (King's Lynn)

Important Notice to Prospective Buyers:

We draw your attention to the Special Conditions of Sale within the Legal Pack, referring to other charges in addition to the purchase price which may become payable. Such costs may include Search Fees, reimbursement of Sellers costs and Legal Fees, and Transfer Fees amongst others.

Additional Fees

Buyer's Premium - £1200 inc VAT payable on exchange of contracts.

Administration Charge - £1200 inc VAT payable on exchange of contracts.

Disbursements - Please see the legal pack for any disbursements listed that may become payable by the purchaser on completion.

View Larger Map

Disclaimer: The map preview provided above is for general guidance only and may not accurately reflect the exact location or surrounding buildings. Prospective buyers and interested parties are strongly advised to independently verify the precise location and surroundings before bidding.