For Sale By Auction | 10:00, 18 June 2025 | Lot 17

Old Police House, Letheringsett Road, Thornage, Holt, Norfolk NR25 7QD

Sold £251,000

  • Detached House
  • 3 Bedrooms
  • Tenure: Freehold

Call the team on 01603 505 100 for more information

Auction Date

Wed 18/06/2025

Auction Time

10:00

Auction Venue

Livestream Auction

A delightfully situated three bedroom detached house requiring modernisation

Owned by the same family for around 55 years, the Old Police House remains largely untouched—a true time capsule from the 1970s. Original fireplaces, doors, and traces of floral wallpaper offer a nostalgic glimpse into a bygone era. This three bedroom detached house has been neglected in recent years but provides a wonderful blank canvas for someone to modernise or extend into a highly desirable property. The large but overgrown garden is also in need of attention but could provide off road parking and adjoins farmland providing a picturesque outlook. The house has three bedrooms, two reception rooms, kitchen, bathroom and separate wc. Thornage is a highly sought after village approximately two miles from Holt.

Tenure

Freehold

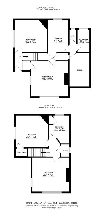
Ground Floor

Hall, lounge, dining room, kitchen, store room, bathroom, separate wc

First Floor

Landing, three bedrooms, walk-in in cupboard

Outside

Large overgrown garden with potential off road parking and garage

Council Tax Band

C

Viewings

The final viewing day is arranged for Monday 16th June. Call the Norwich office to be allocated the next available appointment.

Energy Efficiency Rating (EPC)

Current Rating G

Services

Interested parties are requested to make their own enquiries to the relevant authorities as to the availability of services.

Local Authority

North Norfolk District Council

Solicitors

Spire Solicitors LLP (Norwich), Ref: Tracy Guest, Tel: 01603 886221

Important Notice to Prospective Buyers:

We draw your attention to the Special Conditions of Sale within the Legal Pack, referring to other charges in addition to the purchase price which may become payable. Such costs may include Search Fees, reimbursement of Sellers costs and Legal Fees, and Transfer Fees amongst others.

Additional Fees

Buyer's Premium - £960 inc VAT payable on exchange of contracts.

Administration Charge - £1200 inc VAT payable on exchange of contracts.

Disbursements - Please see the legal pack for any disbursements listed that may become payable by the purchaser on completion.

View Larger Map

Disclaimer: The map preview provided above is for general guidance only and may not accurately reflect the exact location or surrounding buildings. Prospective buyers and interested parties are strongly advised to independently verify the precise location and surroundings before bidding.