For Sale By Auction | 10:00, 18 June 2025 | Lot 125

7 Jubilee Terrace, Caister-On-Sea, Great Yarmouth, Norfolk NR30 5DE

Sold £106,000

  • Terraced House
  • 3 Bedrooms
  • Tenure: Freehold

Call the team on 01603 505 100 for more information

Auction Date

Wed 18/06/2025

Auction Time

10:00

Auction Venue

Livestream Auction

Victorian mid-terraced house in need of some modernisation situated in the desirable coastal village of Caister-on-Sea

This Victorian terrace is tucked away on a small cul-de-sac in the centre of Caister-on-Sea a popular coastal resort north of Great Yarmouth. The property offers two double bedrooms and a third bedroom/dressing room off the second along with two reception rooms, kitchen and shower room on the ground floor. In need of some updating throughout this would be ideal for someone looking for a project. The property benefits from a South facing garden.

Tenure

Freehold

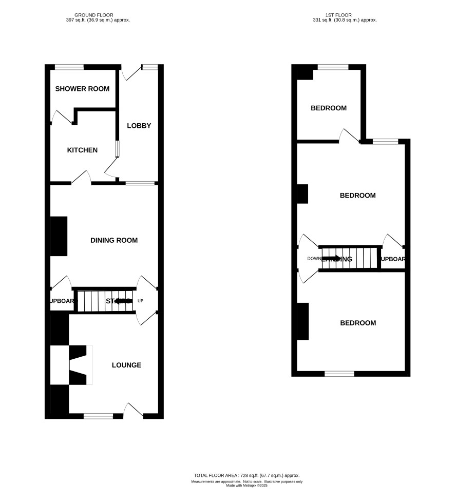
Ground floor

Sitting room, dining room, kitchen, shower room and rear lean to offering a great utility area

First floor

Landing, two double bedrooms, third bedroom/dressing room leading off second.

Exterior

Small frontage leading to front entrance. South facing rear garden.

Council Tax Band

A

Viewings

Viewings are being held by appointment only and the final opportuity is Tuesday 17 June. Please contact the Norwich office to book your appointment time

Energy Efficiency Rating (EPC)

Current Rating D

Services

Interested parties are requested to make their own enquiries to the relevant authorities as to the availability of services.

Local Authority

Great Yarmouth Borough Council

Solicitors

Chamberlins (Caister-on-Sea), Ref: Paul Ward, Tel: 01493 857621

Important Notice to Prospective Buyers:

We draw your attention to the Special Conditions of Sale within the Legal Pack, referring to other charges in addition to the purchase price which may become payable. Such costs may include Search Fees, reimbursement of Sellers costs and Legal Fees, and Transfer Fees amongst others.

Additional Fees

Buyer's Premium - £960 inc VAT payable on exchange of contracts.

Administration Charge - £1200 inc VAT payable on exchange of contracts.

Disbursements - Please see the legal pack for any disbursements listed that may become payable by the purchaser on completion.

View Larger Map

Disclaimer: The map preview provided above is for general guidance only and may not accurately reflect the exact location or surrounding buildings. Prospective buyers and interested parties are strongly advised to independently verify the precise location and surroundings before bidding.