Call the team on 01603 505 100 for more information
Vacant double bay fronted end terrace nine bedroom house of multiple occupation (HMO)
This substantial double bay fronted end terrace nine bedroom house of multiple occupation (HMO) extends to around 2,304 sq/ft. It has considerable character and appeal and now requires some improvement to realise its full potential. There is the potential for off road parking and for the building to be reconfigured to flats, subject to the necessary consents being obtained. It is located close just south of the heart of Norwich, being within a short walk of the main shopping facilities, the bus station and city college.
Tenure
Freehold
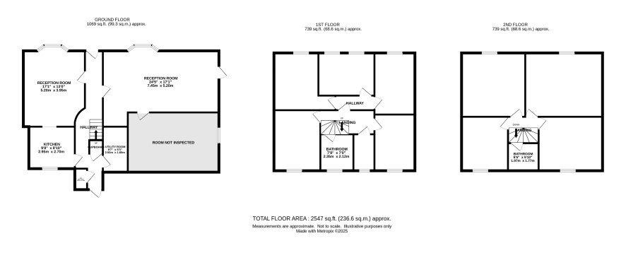
Ground floor
Entrance hall, wc, utility room, kitchen, sitting room, dining room
First floor
Landing, bathroom, five bedrooms, wetroom
Second floor
Landing, bathroom, four bedrooms
Outside
Small rear courtyard, front garden, side garden with potential for off road parking
Note
We are informed by the seller that the property did not require an HMO licence when it was tenanted under the regulations as it is owned and managed by a housing association.
Viewings
Open viewings are arranged and the final one is on Monday 16 June. Please call the Norwich office to book an appointment.
Energy Efficiency Rating (EPC)
Current Rating D
Services
Interested parties are requested to make their own enquiries to the relevant authorities as to the availability of services.
Local Authority
Norwich City Council
Solicitors
Howes Percival (Norwich), Flint Buildings, Ref: Katie Reading, Tel: 01603 281933
Important Notice to Prospective Buyers:
We draw your attention to the Special Conditions of Sale within the Legal Pack, referring to other charges in addition to the purchase price which may become payable. Such costs may include Search Fees, reimbursement of Sellers costs and Legal Fees, and Transfer Fees amongst others.
Additional Fees
Buyer's Premium - £960 inc VAT payable on exchange of contracts.
Administration Charge - £1200 inc VAT payable on exchange of contracts.
Disbursements - Please see the legal pack for any disbursements listed that may become payable by the purchaser on completion.
Disclaimer: The map preview provided above is for general guidance only and may not accurately reflect the exact location or surrounding buildings. Prospective buyers and interested parties are strongly advised to independently verify the precise location and surroundings before bidding.