Postponed | Lot 10

Lorne House, Shortthorn Road, Stratton Strawless, Norwich, Norfolk NR10 5NT

Postponed

  • Detached House
  • 6 Bedrooms
  • Tenure: Freehold

Call the team on 01603 505 100 for more information

Auction Date

Wed 18/06/2025

Auction Time

10:00

Auction Venue

Livestream Auction

Impressive family home set in 11.7 acres of private grounds, further development potential

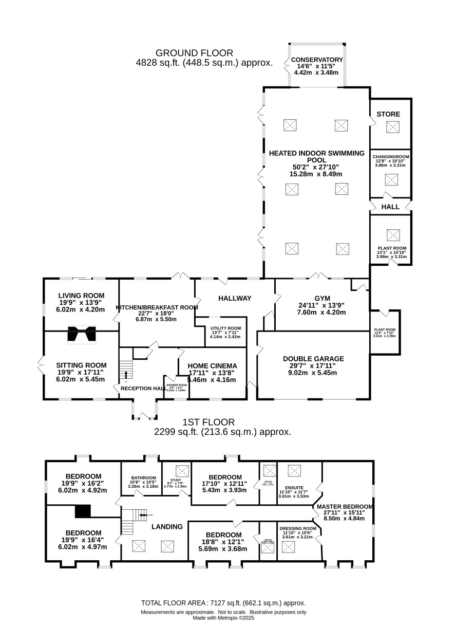
An exceptional detached house set in 11.7 acres of delightful private grounds with swimming pool, gym and home cinema. The property benefits from extensive living accommodation that extends to approximately 7,000 sq ft, this includes a master bedroom, with ensuite dressing room and bathroom, 5 further bedrooms, three bathrooms and a first floor study. The ground floor rooms offer well planned and adaptable living space with a large central kitchen breakfast toom with Aga and shaker style units. The house is beautifully presented throughout and is worthy of detailed inspection. The grounds include extensive lawned areas bordered by mature trees. An area of land to the front of the site has designation for use as commercial land in conjunction with a previous business and this may offer further development potential (subject to planning) The house is well placed for access to the market town of Aylsham (5 miles), Holt (13 miles) and into the city of Norwich (9 miles).

Tenure

Freehold

Ground Floor

Spacious hall, lounge, sitting room, kitchen/breakfast room, utility room, home cinema (bedroom 6), shower/cloakroom, Rear hall, Gym, Swimming pool, conservatory, changing rooms, plant and storage rooms.

First Floor

Landing, master bedroom with ensuite bath and dressing room, 4 further bedrooms 2 with ensuite facilities, family bathroom, study.

Outside

Extensive driveway and parking area leading to integral double garage. Parkland grounds extending to 11.7 acres with formal gardens, patio areas, summer house, numerous mature trees. Area of land previously used for owners business. Potential for a range of alternative uses including commercial residential or industrial (subject to planning).

Note

Heating for house and pool provided by air source heat pump. The adjoining land and commercial buildings are currently let but may be available by separate negotiation.

Council Tax Band

E

Energy Efficiency Rating (EPC)

Current Rating D

Services

Interested parties are requested to make their own enquiries to the relevant authorities as to the availability of services.

Local Authority

Broadland District Council

Solicitors

Butcher Andrews (Fakenham), Ref: Helen Hemingray, Tel: 01328 863131

Offered in association with

Stobart and Hurrell

Important Notice to Prospective Buyers:

We draw your attention to the Special Conditions of Sale within the Legal Pack, referring to other charges in addition to the purchase price which may become payable. Such costs may include Search Fees, reimbursement of Sellers costs and Legal Fees, and Transfer Fees amongst others.

Additional Fees

Buyer's Premium - £1800 inc VAT payable on exchange of contracts.

Administration Charge - £1200 inc VAT payable on exchange of contracts.

Disbursements - Please see the legal pack for any disbursements listed that may become payable by the purchaser on completion.

View Larger Map

Disclaimer: The map preview provided above is for general guidance only and may not accurately reflect the exact location or surrounding buildings. Prospective buyers and interested parties are strongly advised to independently verify the precise location and surroundings before bidding.