For Sale By Auction | 10:00, 18 June 2025 | Lot 14

31 Northfield Gardens, Wymondham, Norfolk NR18 0DG

Sold £182,500

  • Semi-Detached House
  • 2 Bedrooms
  • Tenure: Freehold

Call the team on 01603 505 100 for more information

Auction Date

Wed 18/06/2025

Auction Time

10:00

Auction Venue

Livestream Auction

A two bedroom ex local authority semi detached house requiring modernisation

This semi detached ex local authority house is now vacant and in need of modernisation. It benefits from spacious corner gardens which could offer space for further extension if required, subject to planning approval. The house is double glazed, has gas central heating and is an ideal project for builder, investor or first time buyer. Wymondham is a highly popular town fully served by a wide range of community facilities, shops, schools and regular public transport including a railway station.

Tenure

Freehold

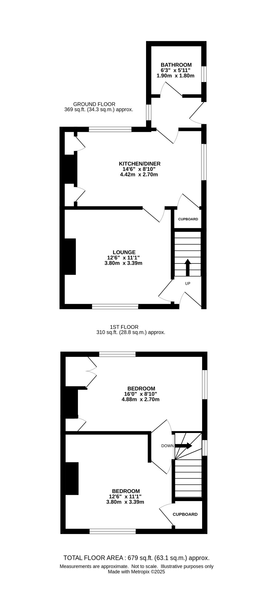
Ground Floor

Entrance, lounge, kitchen/diner, bathroom

First Floor

Landing, two bedrooms

Outside

Spacious corner gardens with off road parking and outbuildings

Council Tax Band

B

Viewings

The final viewing day has been arranged for Monday 16 June. Please telephone the Norwich office so a slot can be allocated to you.

Energy Efficiency Rating (EPC)

Current Rating C

Services

Interested parties are requested to make their own enquiries to the relevant authorities as to the availability of services.

Local Authority

South Norfolk Council

Solicitors

Howes Percival (Norwich), Ref: Sally Rackham, Tel: 01603 284250

Important Notice to Prospective Buyers:

We draw your attention to the Special Conditions of Sale within the Legal Pack, referring to other charges in addition to the purchase price which may become payable. Such costs may include Search Fees, reimbursement of Sellers costs and Legal Fees, and Transfer Fees amongst others.

Additional Fees

Buyer's Premium - £900 inc VAT payable on exchange of contracts.

Administration Charge - £1200 inc VAT payable on exchange of contracts.

Disbursements - Please see the legal pack for any disbursements listed that may become payable by the purchaser on completion.

View Larger Map

Disclaimer: The map preview provided above is for general guidance only and may not accurately reflect the exact location or surrounding buildings. Prospective buyers and interested parties are strongly advised to independently verify the precise location and surroundings before bidding.