For Sale By Auction | 10:00, 18 June 2025 | Lot 130

200 Bridge Road, Lowestoft, Suffolk NR33 9JX

Sold £162,500

  • Semi-Detached House
  • 3 Bedrooms
  • Tenure: Freehold

Call the team on 01603 505 100 for more information

Auction Date

Wed 18/06/2025

Auction Time

10:00

Auction Venue

Livestream Auction

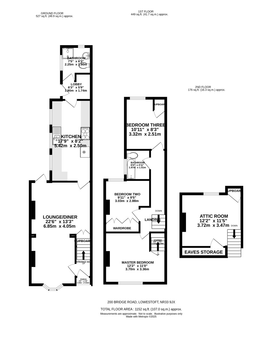
Three bedroom semi detached house with long rear garden in need of improvement

This spacious hall entrance three bedroom semi detached house has accommodation over three floors. The property has a long rear garden with off road parking and occupies a 0.1 acre plot. It is in need of updating. It is located a short distance from Oulton Broad, a useful range of shopping facilities and the Railway Station.

Tenure

Freehold

Ground Floor

Entrance hall, lounge/diner, kitchen, shower room, rear lobby

First Floor

Landing, three bedrooms, bathroom

Second Floor

Attic room

Outside

Front garden with side access to long rear garden with outbuildings.

Council Tax Band

B

Viewings

Open viewings have been arranged and the next are on Monday 9 and Thursday 12 June. To book an appointment please call the Norwich office.

Energy Efficiency Rating (EPC)

Current Rating D

Services

Interested parties are requested to make their own enquiries to the relevant authorities as to the availability of services.

Local Authority

East Suffolk Council

Solicitors

TLT LLP (Countrywide), Ref: William Range

Important Notice to Prospective Buyers:

We draw your attention to the Special Conditions of Sale within the Legal Pack, referring to other charges in addition to the purchase price which may become payable. Such costs may include Search Fees, reimbursement of Sellers costs and Legal Fees, and Transfer Fees amongst others.

Additional Fees

Buyer's Premium - £1500 inc VAT payable on exchange of contracts.

Administration Charge - £1200 inc VAT payable on exchange of contracts.

Disbursements - Please see the legal pack for any disbursements listed that may become payable by the purchaser on completion.

View Larger Map

Disclaimer: The map preview provided above is for general guidance only and may not accurately reflect the exact location or surrounding buildings. Prospective buyers and interested parties are strongly advised to independently verify the precise location and surroundings before bidding.