For Sale By Auction | 10:00, 30 July 2025 | Lot 123

4 Stanley Terrace, Middle Market Road, Great Yarmouth, Norfolk NR30 2EG

Sold £62,000

  • Terraced House
  • 3 Bedrooms
  • Tenure: Freehold

Call the team on 01603 505 100 for more information

Auction Date

Wed 30/07/2025

Auction Time

10:00

Auction Venue

Livestream Auction

Three bedroom three storey mid terrace house requiring complete refurbishment

This mid terrace house has been owned by the same person for around 45 years and is now to be sold with vacant possession. The property is deceptively spacious with accommodation over three floors. It requires a program of modernisation and improvement to realise its full potential. The property is tucked away on a traffic free street less than a mile north of the town centre. This would appeal to a builder / investor. On instruction of an executor.

Tenure

Freehold

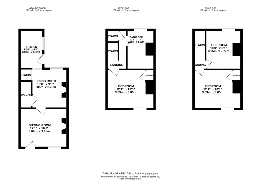
Ground floor

Sitting room, dining room, kitchen

First floor

Bedroom, bathroom

Second floor

Two bedrooms

Outside

Rear yard and outside wc

Council Tax Band

A

Viewings

Open viewings are arranged by appointment - the next are on Wednesday 23 July. Please call the Norwich office to book an appointment.

Energy Efficiency Rating (EPC)

Current Rating F

Services

Interested parties are requested to make their own enquiries to the relevant authorities as to the availability of services.

Local Authority

Great Yarmouth Borough Council

Solicitors

Chamberlins (Great Yarmouth), Ref: Paul Ward, Tel: 01493 720019

Important Notice to Prospective Buyers:

We draw your attention to the Special Conditions of Sale within the Legal Pack, referring to other charges in addition to the purchase price which may become payable. Such costs may include Search Fees, reimbursement of Sellers costs and Legal Fees, and Transfer Fees amongst others.

Additional Fees

Administration Charge - £1200 inc VAT payable on exchange of contracts.

Disbursements - Please see the legal pack for any disbursements listed that may become payable by the purchaser on completion.

View Larger Map

Disclaimer: The map preview provided above is for general guidance only and may not accurately reflect the exact location or surrounding buildings. Prospective buyers and interested parties are strongly advised to independently verify the precise location and surroundings before bidding.