For Sale By Auction | 10:00, 30 July 2025 | Lot 110

42 Abbey Park, Beeston Regis, Sheringham, Norfolk NR26 8SR

Sold £272,000

  • Detached Bungalow
  • 2 Bedrooms
  • Tenure: Freehold

Call the team on 01603 505 100 for more information

Auction Date

Wed 30/07/2025

Auction Time

10:00

Auction Venue

Livestream Auction

Viewing Times:

Thu 10 Jul

14:00-14:30

Two bedroom detached bungalow close to the North Norfolk coast

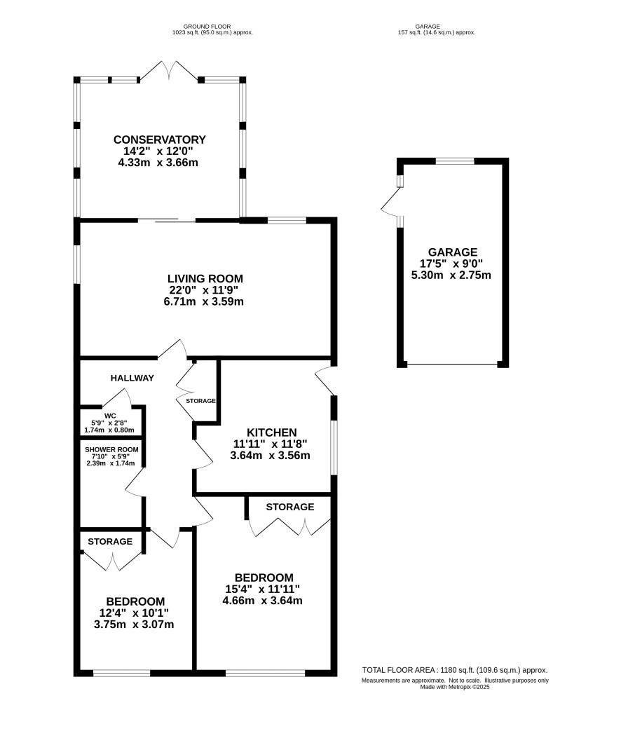
This two bedroom detached bungalow extends to around 1,180 sq/ft and benefits from double glazing, gas central heating and a good size plot. It has been in the same ownership for 23 years and is now to be sold with vacant possession. It requires some improvement to realise its full potential. The property is located near Beeston and Sheringham Common and is around a mile South of the North Norfolk coast. Ideal for owner occupation or investment

Tenure

Freehold

Ground floor

Kitchen, two bedrooms, shower room, wc, hallway, living room, conservatory

Outside

Garage, off road parking, front and rear garden in need of attention

Viewings

Open viewings are arranged and the next are on Wednesday 23 July. To book an appointment please call the Norwich office.

Energy Efficiency Rating (EPC)

Current Rating D

Services

Interested parties are requested to make their own enquiries to the relevant authorities as to the availability of services.

Local Authority

North Norfolk District Council

Solicitors

nplaw, Ref: Gerry Casey, Tel: 01603 222925

Important Notice to Prospective Buyers:

We draw your attention to the Special Conditions of Sale within the Legal Pack, referring to other charges in addition to the purchase price which may become payable. Such costs may include Search Fees, reimbursement of Sellers costs and Legal Fees, and Transfer Fees amongst others.

Additional Fees

Buyer's Premium - £960 inc VAT payable on exchange of contracts.

Administration Charge - £1200 inc VAT payable on exchange of contracts.

Disbursements - Please see the legal pack for any disbursements listed that may become payable by the purchaser on completion.

View Larger Map

Disclaimer: The map preview provided above is for general guidance only and may not accurately reflect the exact location or surrounding buildings. Prospective buyers and interested parties are strongly advised to independently verify the precise location and surroundings before bidding.