For Sale By Auction | 10:00, 30 July 2025 | Lot 101

3 New Delight Road, Rickinghall, Diss, Norfolk IP22 1LX

Sold £143,000

  • Semi-Detached House
  • 3 Bedrooms
  • Tenure: Freehold

Call the team on 01473 558 888 for more information

Auction Date

Wed 30/07/2025

Auction Time

10:00

Auction Venue

Livestream Auction

Three bedroom terraced property requiring full remedial and cosmetic works

A three-bedroom mid-terraced property offering excellent potential for renovation, ideally suited to investors or buyers seeking a project. Benefitting from off-road parking to the front, the property requires full remedial and cosmetic works throughout, providing a fantastic opportunity to add value and personalise. With spacious accommodation across two floors, this home is ready for transformation. To the rear a good sized garden over looking fields plus outside storage space. With good local schools and easy access to Diss and Bury St Edmunds, Rickinghall combines practical connectivity with a peaceful rural atmosphere. Featuring two pubs, a Co-op, takeaway options, and occasional artisan markets held at the well-equipped village hall and multi-sports complex.

Tenure

Freehold

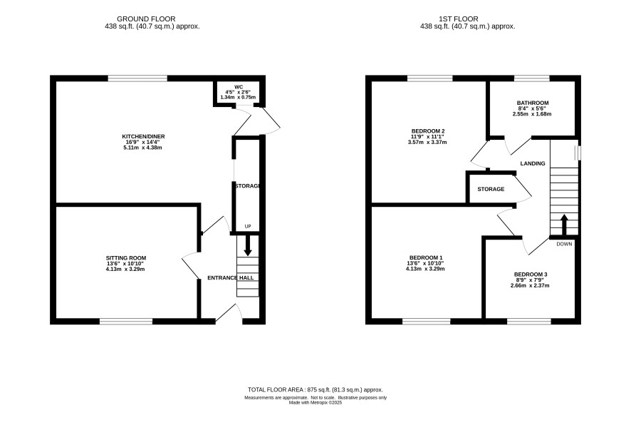
Ground Floor

The ground floor comprises an entrance hallway, a generously sized lounge and to the rear is a kitchen/diner with access to a downstairs W/C. A side door provides direct access to the garden.

First Floor

The first floor offers two well-proportioned double bedrooms and a single bedroom, making it ideal for families. Also benefitting from a family bathroom while a built-in storage cupboard off the landing provides additional practicality.

Council Tax Band

B

Viewing Details

OPEN HOUSE Tuesday 8th July at 11:00am Tuesday 15th 10:30am Wednesday 23rd 13:00pm Please confirm you will be attending by emailing or calling the office.

Energy Efficiency Rating (EPC)

Current Rating Please refer to Legal Pack

Services

Interested parties are requested to make their own enquiries to the relevant authorities as to the availability of services.

Local Authority

Mid Suffolk District Council

Solicitors

West Suffolk - Legal, Ref: Hannah Evans, Tel: 01284 757141

Important Notice to Prospective Buyers:

We draw your attention to the Special Conditions of Sale within the Legal Pack, referring to other charges in addition to the purchase price which may become payable. Such costs may include Search Fees, reimbursement of Sellers costs and Legal Fees, and Transfer Fees amongst others.

Additional Fees

Buyer's Premium - £1200 inc VAT payable on exchange of contracts.

Administration Charge - £1200 inc VAT payable on exchange of contracts.

Disbursements - Please see the legal pack for any disbursements listed that may become payable by the purchaser on completion.

View Larger Map

Disclaimer: The map preview provided above is for general guidance only and may not accurately reflect the exact location or surrounding buildings. Prospective buyers and interested parties are strongly advised to independently verify the precise location and surroundings before bidding.