For Sale By Auction | 10:00, 30 July 2025 | Lot 127

11 Station Square, Lowestoft, Suffolk NR32 1BA

Sold £98,000

  • Mixed Use
  • 4 Bedrooms
  • Tenure: Freehold

Call the team on 01603 505 100 for more information

Auction Date

Wed 30/07/2025

Auction Time

10:00

Auction Venue

Livestream Auction

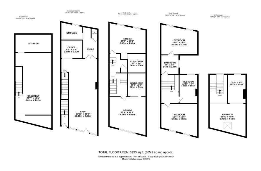
A four storey town centre freehold premises in need of some updating, previously a lock up hairdressers shop and a spacious self-contained four bedroom maisonette

This impressive four storey building comprises a former lock up hairdressing salon and large self-contained maisonette above offering outstanding views of Lowestoft Harbour. The flat and shop are now in need of general improvement but the building could offer outstanding investment income being located close to the town centre, railway station and harbour. The spacious hair dressing salon nestles below the flat and offers main shop/salon area, two stock rooms, separate cloakroom and cellar with the upper floors this extends to 3,500 sq ft of floor space. Potential to convert upper floors into multiple units.

Tenure

Freehold

Ground Floor

Main retail salon area, two stock rooms, cloak room, large cellar.

Upper Floors (Maisonette)

Arranged over four floors with own entrance, kitchen, dining room, four bedrooms, bathroom and attic room.

Business Rates

According to the Valuation Office website the former hairdressing salon and premises has a current rateable value of £3,300 with effect from 1 April 2023.

Council Tax Band

A

Energy Efficiency Rating (EPC)

Current Rating E

Services

Interested parties are requested to make their own enquiries to the relevant authorities as to the availability of services.

Local Authority

Suffolk Coastal District Council

Solicitors

Leathes Prior (The Close), Ref: Lily Beel, Tel: 01603 281185

Important Notice to Prospective Buyers:

We draw your attention to the Special Conditions of Sale within the Legal Pack, referring to other charges in addition to the purchase price which may become payable. Such costs may include Search Fees, reimbursement of Sellers costs and Legal Fees, and Transfer Fees amongst others.

Additional Fees

Buyer's Premium - £600 inc VAT payable on exchange of contracts.

Administration Charge - £1200 inc VAT payable on exchange of contracts.

Disbursements - Please see the legal pack for any disbursements listed that may become payable by the purchaser on completion.

View Larger Map

Disclaimer: The map preview provided above is for general guidance only and may not accurately reflect the exact location or surrounding buildings. Prospective buyers and interested parties are strongly advised to independently verify the precise location and surroundings before bidding.