Withdrawn | Lot 99a

9 Holmsey Green, Beck Row, Bury St. Edmunds, Suffolk IP28 8AJ

Withdrawn

  • Detached House
  • 3 Bedrooms
  • Tenure: Freehold

Call the team on 01473 558 888 for more information

Auction Date

Wed 30/07/2025

Auction Time

10:00

Auction Venue

Livestream Auction

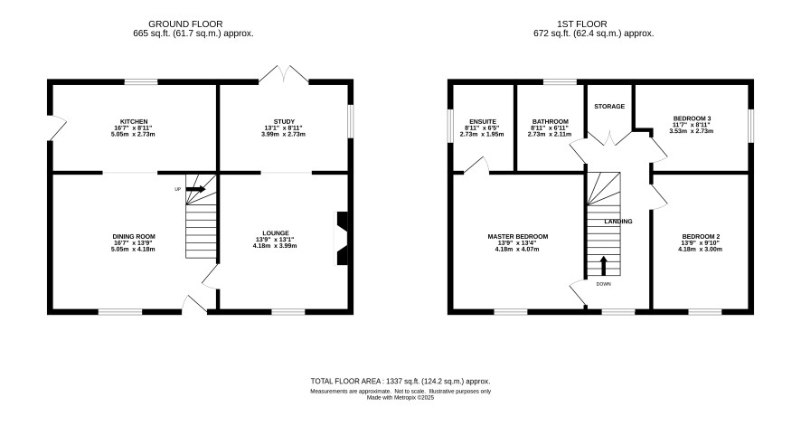
Three bedroom detached property with off road parking, requiring modernisation

This spacious three bedroom family home offers an exciting opportunity for buyers looking to put their own stamp on a property. In need of modernisation, the home boasts excellent proportions and a flexible layout, making it ideal for a growing family or investor. The ground floor features an open-plan kitchen and dining area with a side door leading to the garden, a cosy lounge complete with a feature fireplace, and a bright study area with double doors opening onto the outdoor space. Upstairs, the master bedroom includes an en-suite, alongside two further double bedrooms, a family bathroom, and a handy storage cupboard. Externally, the home enjoys a large driveway with ample off-road parking and a spacious garden, perfect for outdoor entertaining and family life.

Tenure

Freehold

Location

Beck Row maintains its rural charm while offering convenient access to larger towns such as Mildenhall and Bury St Edmunds, making it a desirable location for those seeking a balance between countryside living and amenities. The village is notable for its proximity to RAF Mildenhall, a significant presence in the area.

Council Tax Band

E

Energy Efficiency Rating (EPC)

Current Rating F

Services

Interested parties are requested to make their own enquiries to the relevant authorities as to the availability of services.

Local Authority

West Suffolk Council

Solicitors

Bendall and Sons (Mildenhall), Ref: Andrew Geddes, Tel: 01638 712243

Important Notice to Prospective Buyers:

We draw your attention to the Special Conditions of Sale within the Legal Pack, referring to other charges in addition to the purchase price which may become payable. Such costs may include Search Fees, reimbursement of Sellers costs and Legal Fees, and Transfer Fees amongst others.

Additional Fees

Buyer's Premium - £1200 inc VAT payable on exchange of contracts.

Administration Charge - £1200 inc VAT payable on exchange of contracts.

Disbursements - Please see the legal pack for any disbursements listed that may become payable by the purchaser on completion.

View Larger Map

Disclaimer: The map preview provided above is for general guidance only and may not accurately reflect the exact location or surrounding buildings. Prospective buyers and interested parties are strongly advised to independently verify the precise location and surroundings before bidding.