Postponed | Lot 36

9 Fakenham Road, Great Ryburgh, Fakenham, Norfolk NR21 7AW

Postponed

  • Detached House
  • 3 Bedrooms
  • Tenure: Freehold

Call the team on 01603 505 100 for more information

Auction Date

Wed 22/10/2025

Auction Time

10:00

Auction Venue

Livestream Auction

Detached cottage in need of modernisation within the village of Great Ryburgh near Fakenham.

Detached period cottage now requiring a full programme of renovation to realise its full potential with gas centrally heated and partly double glazed 3 bedroomed accommodation, South-facing Conservatory and patio garden, and useful Store/Workshop. The property is located in a convenient position just 50 yards from the Village Stores, and within easy walking distance of other village amenities including the village hall, chip shop and Church.

Tenure

Freehold

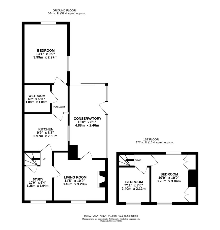
Ground floor

Conservatory, inner hall, kitchen, sitting room, study, ground floor bedroom and shower room.

First floor

Two bedrooms off landing.

Outside

South-facing Conservatory and patio garden, and useful Store/Workshop

Agent Note

The vendors are retaining a parcel of garden within the current title (please refer to the legal pack)..

Viewings

Viewings are currently being arranged and the next are on Friday 17th October. Please call the Norwich office to book the next available slot.

Energy Efficiency Rating (EPC)

Current Rating E

Services

Interested parties are requested to make their own enquiries to the relevant authorities as to the availability of services.

Local Authority

North Norfolk District Council

Solicitors

Hayes and Storr (Fakenham), Ref: John Perry, Tel: 01328 863231

Important Notice to Prospective Buyers:

We draw your attention to the Special Conditions of Sale within the Legal Pack, referring to other charges in addition to the purchase price which may become payable. Such costs may include Search Fees, reimbursement of Sellers costs and Legal Fees, and Transfer Fees amongst others.

Additional Fees

Buyer's Premium - £600 inc VAT payable on exchange of contracts.

Administration Charge - £1200 inc VAT payable on exchange of contracts.

Disbursements - Please see the legal pack for any disbursements listed that may become payable by the purchaser on completion.

View Larger Map

Disclaimer: The map preview provided above is for general guidance only and may not accurately reflect the exact location or surrounding buildings. Prospective buyers and interested parties are strongly advised to independently verify the precise location and surroundings before bidding.