For Sale By Auction | 10:00, 22 October 2025 | Lot 50

58 West Elloe Avenue, Spalding, Lincolnshire PE11 2BH

Sold £168,000

  • Semi-Detached House
  • 3 Bedrooms
  • Tenure: Freehold

Call the team on 01733 889833 for more information

Auction Date

Wed 22/10/2025

Auction Time

10:00

Auction Venue

Livestream Auction

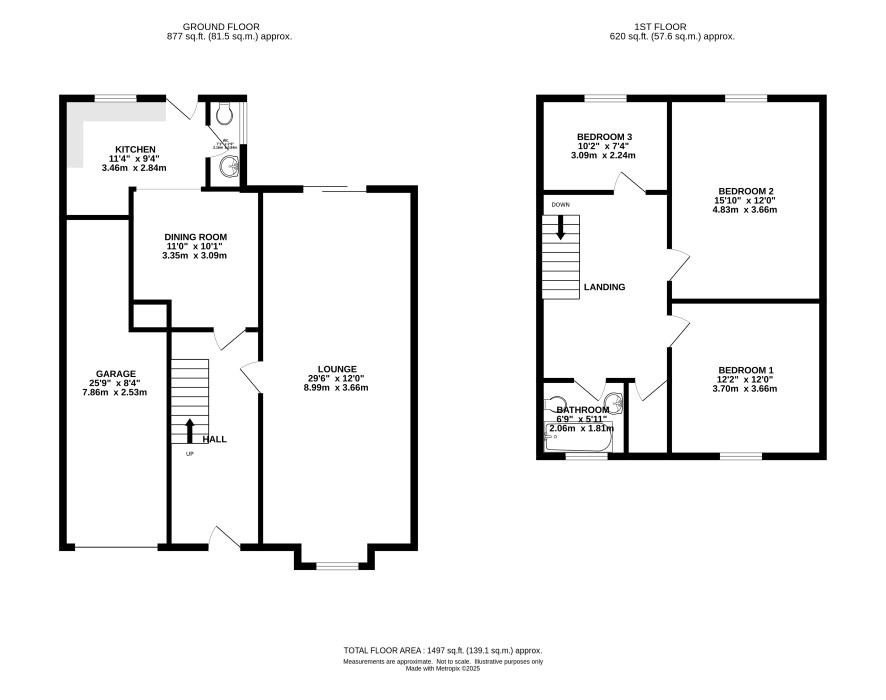
A three bedroom semi detached house in need of renovation with potential to extend situated in a generous plot.

This three bedroom semi detached house is in need of renovation and offers a chance for a developer builder to improve and extend subject to planning. The accommodation includes two reception rooms, kitchen, w.c. three bedrooms and a bathroom. Outside provides an attached garage and a generous plot 46.35 m X 10.71 frontage. Spalding offers a variety of shopping and recreational facilities together with a rail link. The A16 provides access to Peterborough and Boston.

Tenure

Freehold

Ground floor

Hall, lounge, dining room, kitchen and a w.c.

First Floor

Landing three bedrooms and a bathroom.

Outside

Drive to front with single attached garage and gardens at rear. Plot is 46.35 X 10.71.

Council Tax Band

B

Energy Efficiency Rating (EPC)

Current Rating D

Services

Interested parties are requested to make their own enquiries to the relevant authorities as to the availability of services.

Local Authority

South Holland District Council

Solicitors

Maples, Ref: Faye Blair

Important Notice to Prospective Buyers:

We draw your attention to the Special Conditions of Sale within the Legal Pack, referring to other charges in addition to the purchase price which may become payable. Such costs may include Search Fees, reimbursement of Sellers costs and Legal Fees, and Transfer Fees amongst others.

Additional Fees

Buyer's Premium - £1200 inc VAT payable on exchange of contracts.

Administration Charge - £1200 inc VAT payable on exchange of contracts.

Disbursements - Please see the legal pack for any disbursements listed that may become payable by the purchaser on completion.

View Larger Map

Disclaimer: The map preview provided above is for general guidance only and may not accurately reflect the exact location or surrounding buildings. Prospective buyers and interested parties are strongly advised to independently verify the precise location and surroundings before bidding.