For Sale By Auction | 10:00, 10 December 2025 | Lot 109

75 High Street, Gorleston, Great Yarmouth, Norfolk NR31 6RQ

*Guide | £80,000 (plus fees)

  • Commercial Property
  • Tenure: Freehold

Call the team on 01603 505 100 for more information

Auction Date

Wed 10/12/2025

Auction Time

10:00

Auction Venue

Livestream Auction

Mid terrace property comprising a vacant shop and former first floor flat offering potential

This two storey mid terrace high street building has operated as Fleetwood Butchers for some 50 years. The business has recently closed and it is now to be sold with vacant possession. The self contained first floor used to be a flat until the late 1980s and it has since been used for storage. There is the potential to resurrect that residential use, subject to any necessary consents being obtained. According to the valuation office website it has an area of 126 sq/m and rateable value of £5,400 with effect from 1st April 2023.

Tenure

Freehold

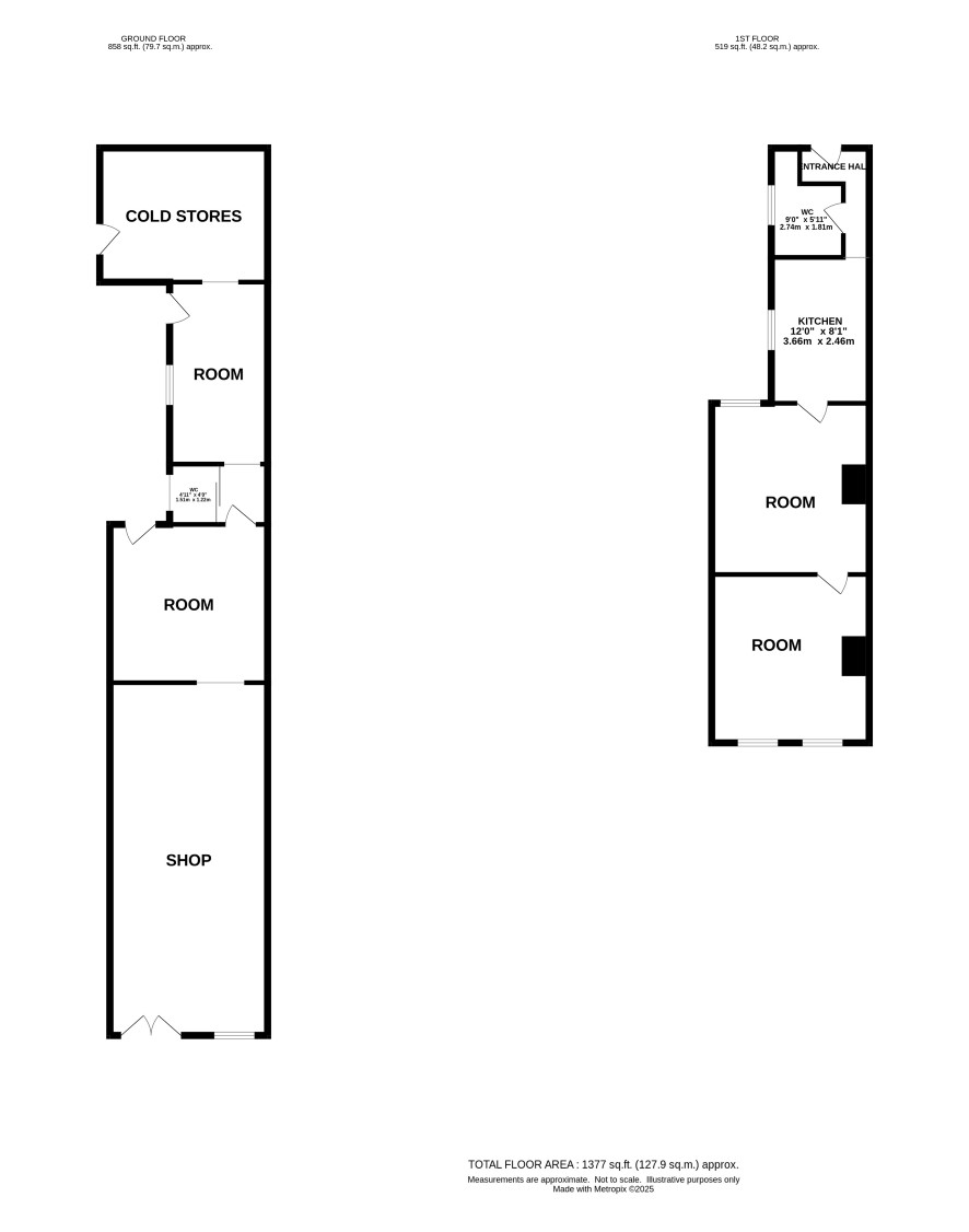
Ground floor

Shop, two rooms, wc, cold stores

First floor

Entrance hall, wc, three rooms

Outside

Rear side enclosed yard area

Viewings

Open viewings are arranged and the next are on Friday 21 November Please call the Norwich office to book the next appointment.

Energy Efficiency Rating (EPC)

Current Rating Please refer to Legal Pack

Services

Interested parties are requested to make their own enquiries to the relevant authorities as to the availability of services.

Local Authority

Great Yarmouth Borough Council

Solicitors

Mears Hobbs LLP, Ref: Julie Kent, Tel: 01493 665413

Important Notice to Prospective Buyers:

We draw your attention to the Special Conditions of Sale within the Legal Pack, referring to other charges in addition to the purchase price which may become payable. Such costs may include Search Fees, reimbursement of Sellers costs and Legal Fees, and Transfer Fees amongst others.

Additional Fees

Buyer's Premium - £960 inc VAT payable on exchange of contracts.

Administration Charge - £1200 inc VAT payable on exchange of contracts.

Disbursements - Please see the legal pack for any disbursements listed that may become payable by the purchaser on completion.

View Larger Map

Disclaimer: The map preview provided above is for general guidance only and may not accurately reflect the exact location or surrounding buildings. Prospective buyers and interested parties are strongly advised to independently verify the precise location and surroundings before bidding.