For Sale By Auction | 10:00, 10 December 2025 | Lot 71

Apple Cottage, Little Green, Earl Soham, Woodbridge, Suffolk IP13 7RZ

*Guide | £220,000 (plus fees)

  • Cottage
  • 2 Bedrooms
  • Tenure: Freehold

Call the team on 01473 558 888 for more information

Auction Date

Wed 10/12/2025

Auction Time

10:00

Auction Venue

Livestream Auction

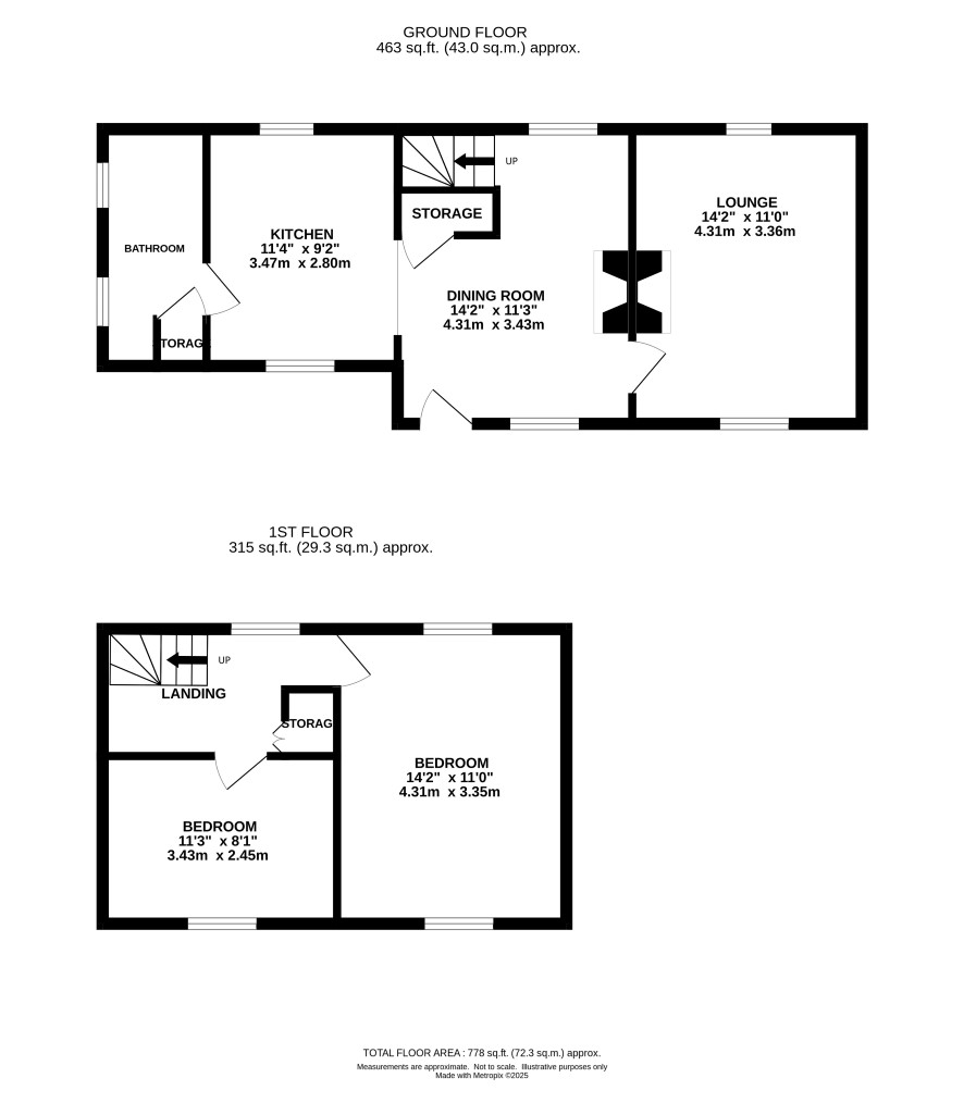
Two-bedroom detached cottage in the village of Earl Soham in need of some cosmetic updating

A characterful cottage (not listed) with plenty of charm and potential, offering two reception rooms with a dual log burner, kitchen area, spacious downstairs bathroom, and upstairs, two double bedrooms—ideal for a new owner to make their own. The cottage also features a small front garden, providing space for a courtyard table and chairs, perfect for enjoying the sunshine. Off road parking on Little Green. The property is located in the sought-after village of Earl Soham, known for its butcher, The Victoria pub serving local brewery ales, and community amenities including a primary school, pre-school, tennis and bowls clubs. Surrounded by Deben Valley’s scenic countryside in a designated Conservation Area, the village is only 30 minutes to the Suffolk coast, and close to the historic market town of Framlingham (4 miles), with further services in Debenham, Woodbridge (13 miles), and Ipswich (14 miles), which offers mainline trains to London in just over an hour and access to the A14 for routes to Cambridge, the Midlands, and London.

Tenure

Freehold

Council Tax Band

C

Energy Efficiency Rating (EPC)

Current Rating E

Services

Interested parties are requested to make their own enquiries to the relevant authorities as to the availability of services.

Local Authority

East Suffolk Council

Solicitors

Watkins Stewart and Ross, Ref: Rebecca Grimsey, Tel: 01473 226 266

Important Notice to Prospective Buyers:

We draw your attention to the Special Conditions of Sale within the Legal Pack, referring to other charges in addition to the purchase price which may become payable. Such costs may include Search Fees, reimbursement of Sellers costs and Legal Fees, and Transfer Fees amongst others.

Additional Fees

Buyer's Premium - £1200 inc VAT payable on exchange of contracts.

Administration Charge - £1200 inc VAT payable on exchange of contracts.

Disbursements - Please see the legal pack for any disbursements listed that may become payable by the purchaser on completion.

View Larger Map

Disclaimer: The map preview provided above is for general guidance only and may not accurately reflect the exact location or surrounding buildings. Prospective buyers and interested parties are strongly advised to independently verify the precise location and surroundings before bidding.