For Sale By Auction | 10:00, 10 December 2025 | Lot 33

2 Rosecroft, Chapel Road, Attleborough, Norfolk NR17 2JN

*Guide | £160,000 - £180,000 (plus fees)

  • End of Terrace House
  • 3 Bedrooms
  • Tenure: Freehold

Call the team on 01603 505 100 for more information

Auction Date

Wed 10/12/2025

Auction Time

10:00

Auction Venue

Livestream Auction

A spacious three bedroom semi detached house in need of updating

Located in a popular residential area, this three bedroom house is now vacant having been successfully tenanted for many years. The property now needs a general upgrade and redecoration to realise its full potential but has gas central heating and is fully double glazed. The garden to the rear is of generous proportions and provides ample space for further expansion (subject to planning approval). Attleborough town centre high school and railway station are within walking distance making the property ideal for investor or owner occupiers.

Tenure

Freehold

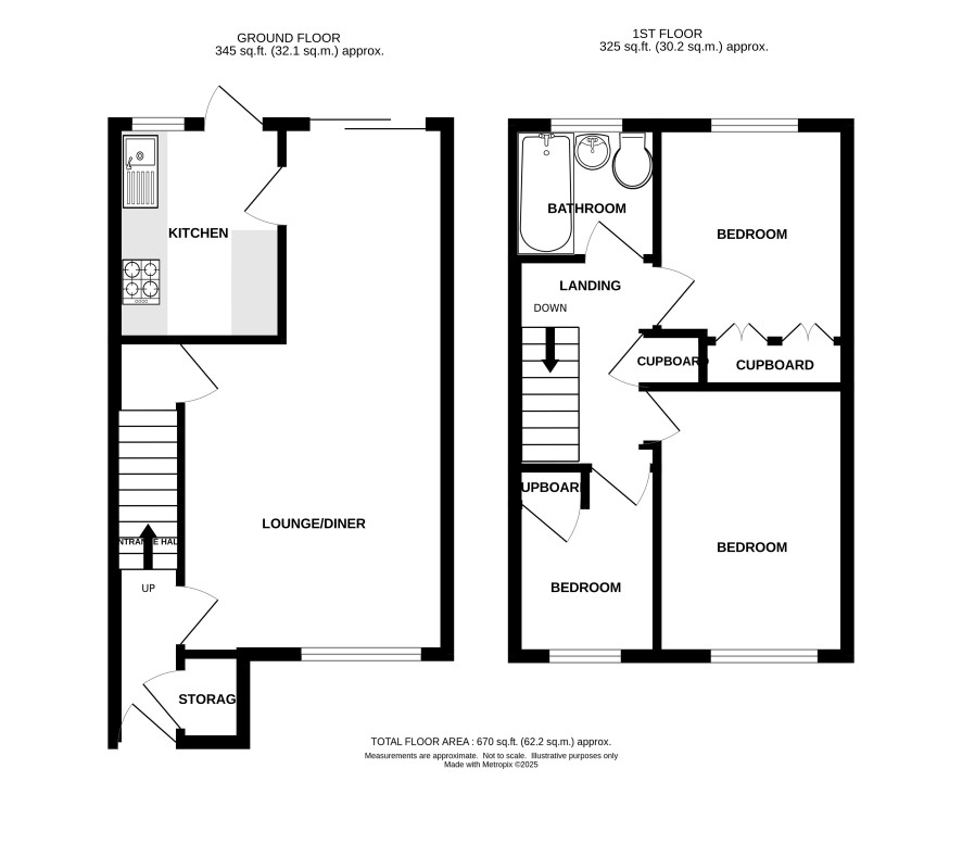
Ground Floor

Hall, lounge/dining room, kitchen

First Floor

Landing, three bedrooms, bathroom

Outside

Front garden, fully walled side and rear garden. Single en-bloc garage and parking space.

Council Tax Band

B

Viewings

Open viewings are arranged and the next are on Friday 21 November. Please call the Norwich office to book an appointment

Energy Efficiency Rating (EPC)

Current Rating C

Services

Interested parties are requested to make their own enquiries to the relevant authorities as to the availability of services.

Local Authority

Breckland Council

Solicitors

Spire Solicitors LLP (Norwich), Ref: Tracy Guest, Tel: 01603 886221

Offered in association with

Normove

Important Notice to Prospective Buyers:

We draw your attention to the Special Conditions of Sale within the Legal Pack, referring to other charges in addition to the purchase price which may become payable. Such costs may include Search Fees, reimbursement of Sellers costs and Legal Fees, and Transfer Fees amongst others.

Additional Fees

Buyer's Premium - £720 inc VAT payable on exchange of contracts.

Administration Charge - £1200 inc VAT payable on exchange of contracts.

Disbursements - Please see the legal pack for any disbursements listed that may become payable by the purchaser on completion.

View Larger Map

Disclaimer: The map preview provided above is for general guidance only and may not accurately reflect the exact location or surrounding buildings. Prospective buyers and interested parties are strongly advised to independently verify the precise location and surroundings before bidding.